Move-in ready two-bed with garage, en-suite and no onward chain.
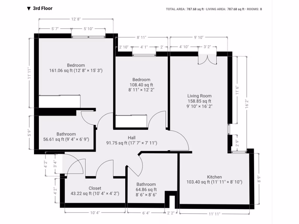
Top-floor two-bedroom apartment, immaculate condition
This top-floor, two-bedroom apartment is presented in immaculate order and sold with no onward chain, offering a straightforward move for first-time buyers or downsizers. The lounge with Juliet balcony brings light into the living space, while a modern fitted kitchen with integrated appliances keeps running costs lower and move-in disruption minimal. The principal bedroom has an en-suite, and the second double benefits from built-in wardrobes — practical layouts for everyday living.
Practical extras include allocated parking and a separate garage, plus fast broadband and excellent mobile signal for home working or streaming. Local schools include several well-rated options, and nearby amenities and transport links make daily life convenient. Council tax is described as cheap and there is no flood risk for added reassurance.
Buyers should note material drawbacks: the property is leasehold (verify remaining term and ground rent/charges), overlooks communal parking rather than private views, and has no private garden. The surrounding area scores as deprived with a high local crime rate; prospective purchasers should factor local safety and long-term area prospects into their decision. Overall this is a well-presented, low-maintenance home with clear appeal for those seeking a ready-to-live-in option, but it requires due diligence on lease details and neighbourhood considerations.
2 bedroom flat for sale in Atholl Duncan Drive, Upton, Wirral, CH49 — £175,000 • 2 bed • 2 bath • 727 ft²
2 bedroom apartment for sale in Flat 3 Upton Court Braeside Gardens,, CH49 — £150,000 • 2 bed • 1 bath • 555 ft²
2 bedroom apartment for sale in Braeside Gardens, Wirral, Merseyside, CH49 — £135,000 • 2 bed • 1 bath • 834 ft²
2 bedroom flat for sale in Ladybower Close, Wirral, CH49 — £140,000 • 2 bed • 1 bath • 614 ft²
2 bedroom flat for sale in Church Road, Upton, Wirral, CH49 — £169,000 • 2 bed • 1 bath • 862 ft²
2 bedroom penthouse for sale in Atholl Duncan Drive, Wirral, CH49 — £175,000 • 2 bed • 1 bath • 639 ft²


























































