**Standout Features:**
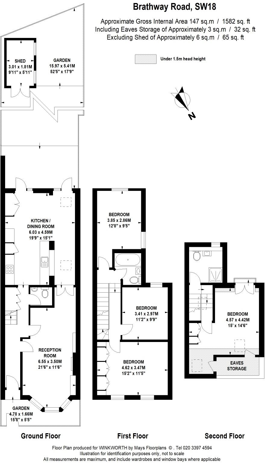
- **Spacious Living:** 4 large bedrooms and 3 floors providing ample living space (1582 sq. ft).
- **Charming Design:** Classic bay windows, feature fireplace, and beautiful period features with tasteful updates.
- **Modern Amenities:** Open-plan kitchen and dining area with integrated appliances and direct garden access.
- **Impressive Garden:** Longest garden on the road, perfect for entertaining or quiet relaxation.
- **Convenient Location:** Situated within 100 meters of St. Michael's Primary School and near transport options like Southfields and Earlsfield Stations.
This substantial end-of-terrace home presents a unique opportunity in one of Wandsworth’s most desirable neighborhoods. With four spacious bedrooms and generous living areas spread over three floors, this property is ideal for families seeking both comfort and community. The bright reception room greets you with a classic bay window and beautiful features, while the impressive open-plan kitchen and dining space leads directly into a remarkably long rear garden—an exceptionally rare find for the area.
Located on a quiet residential street, you'll enjoy access to high-rated schools and fantastic local amenities, from independent cafés to shopping outlets. While the property maintains charming period elements, it also offers modern conveniences, making it a perfect blend of style and practicality. The double-glazed windows and efficient heating system facilitate comfort year-round. With schools like Sheringdale Primary and Ashcroft Academy nearby, this home is particularly well-suited to families.
However, prospective buyers should be aware that while the property is in good condition, it may benefit from personalization and updates to tailor it to individual tastes. Don’t miss this chance to secure a cozy family home with both charm and potential—properties like this don’t stay on the market long!
4 bedroom terraced house for sale in Camborne Road, Southfields, London, SW18 — £1,350,000 • 4 bed • 3 bath • 1873 ft²
4 bedroom terraced house for sale in Winfrith Road, London, SW18 — £1,325,000 • 4 bed • 2 bath • 1819 ft²
4 bedroom end of terrace house for sale in Barmouth Road, London, SW18 — £1,500,000 • 4 bed • 2 bath • 1911 ft²
4 bedroom terraced house for sale in Swanage Road, London, SW18 — £1,500,000 • 4 bed • 2 bath • 1783 ft²
4 bedroom terraced house for sale in Merton Road, London, SW18 — £1,000,000 • 4 bed • 3 bath • 1462 ft²
4 bedroom terraced house for sale in Merton Road, London, SW18 — £1,000,000 • 4 bed • 1 bath • 1155 ft²










































