Large detached four-bed on sought-after tree-lined street — big plot and parking, ideal for growing families..
Large secluded plot with mature garden and hedged-off end area
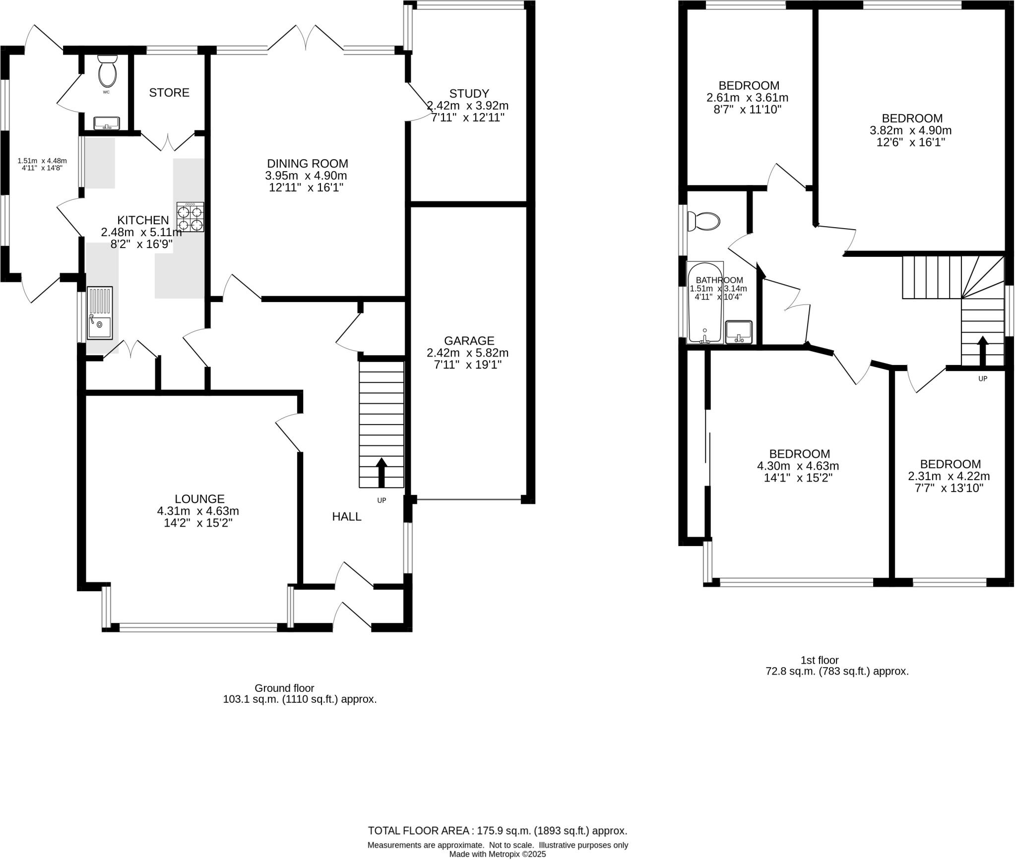
Nestled on a quiet, tree-lined section of Willis Avenue, this 1930s detached house sits on a large, well-established plot with generous off-street parking and a garage. The home blends original period features with recent updates — a 2019 kitchen and double glazing — offering comfortable, light-filled family living across two floors. The layout includes a reception, living room, dining room with garden aspect, a handy office and utility/WC on the ground floor, plus four bedrooms upstairs and loft access.
The large secluded garden includes a hedged-off end area suitable for a garden building, play space or productive planting. The wide driveway accommodates numerous cars — a strong practical benefit for households with multiple drivers or guests. Local amenities, excellent primary and secondary schools, and two nearby stations (fast services to central London) make this a convenient family location.
Notable negatives are factual and important: the property currently has only one bathroom, Council Tax Band G (high running cost), and an EPC rating of D. Wall construction is cavity-built with no confirmed insulation (assumed), which may present longer-term improvement or energy-efficiency work. While the house has been newly renovated in parts and is habitable, some living spaces show dated decor and will suit buyers wanting light modernisation rather than a full refurbishment.
There is potential for future development subject to planning permission (STPP), which may appeal to buyers seeking extension or conversion possibilities. Overall, this is a well-located, characterful family home offering immediate comfort, strong outdoor space and scope to add value with targeted investment.
 4 bedroom detached house for sale in Woodbury Drive, South Sutton, SM2 — £1,150,000 • 4 bed • 1 bath • 1864 ft²
 4 bedroom detached house for sale in Woodbury Drive, South Sutton, SM2 — £1,150,000 • 4 bed • 1 bath • 1864 ft² 4 bedroom detached house for sale in Highfield Road, Sutton, SM1 — £850,000 • 4 bed • 2 bath • 1300 ft²
 4 bedroom detached house for sale in Highfield Road, Sutton, SM1 — £850,000 • 4 bed • 2 bath • 1300 ft² 4 bedroom detached house for sale in Alma Crescent, Cheam, Sutton, SM1 — £625,000 • 4 bed • 1 bath • 1103 ft²
 4 bedroom detached house for sale in Alma Crescent, Cheam, Sutton, SM1 — £625,000 • 4 bed • 1 bath • 1103 ft² 4 bedroom detached house for sale in Chiltern Road, South Sutton, SM2 — £1,000,000 • 4 bed • 2 bath • 1884 ft²
 4 bedroom detached house for sale in Chiltern Road, South Sutton, SM2 — £1,000,000 • 4 bed • 2 bath • 1884 ft² 5 bedroom detached house for sale in Southway, Carshalton Beeches, SM5 — £1,500,000 • 5 bed • 4 bath • 2720 ft²
 5 bedroom detached house for sale in Southway, Carshalton Beeches, SM5 — £1,500,000 • 5 bed • 4 bath • 2720 ft² 3 bedroom semi-detached house for sale in Bramley Road, Sutton, SM1 — £750,000 • 3 bed • 3 bath • 2031 ft²
 3 bedroom semi-detached house for sale in Bramley Road, Sutton, SM1 — £750,000 • 3 bed • 3 bath • 2031 ft²














































































