IP10 0FL - 4 bedroom detached house for sale in Paddock Close, Kirton,…

View on Property Piper

4 bedroom detached house for sale in Paddock Close, Kirton, Ipswich, IP10

Summary - 30, Paddock Close, Kirton, IPSWICH IP10 0FL

4 bed 2 bath Detached

**Standout Features:**
- Modern, well-presented four-bedroom detached house
- Spacious master bedroom with en-suite
- Refitted kitchen/breakfast room (2022)
- Generous south-facing rear garden offering privacy
- Driveway and single garage with off-street parking
- Energy-efficient with gas central heating and double-glazed windows
- Located in a tranquil cul-de-sac in Kirton village

**Summary:**
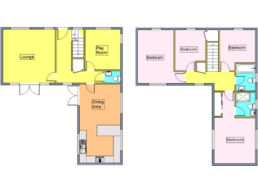
Discover a beautifully designed four-bedroom detached home nestled in the peaceful village of Kirton, Ipswich. Spanning a generous layout of 2,392 square feet, this property boasts a stylishly refitted kitchen, featuring high-quality integrated appliances and ample dining space, perfect for family gatherings. The inviting lounge and playroom provide versatility for relaxation and activities, while the master bedroom includes an en-suite for added convenience.

The south-facing rear garden is an outdoor oasis, ideal for entertaining or enjoying a quiet evening. With a driveway accommodating two vehicles and a single garage, you'll have ample parking. Enjoy low crime rates and the charm of village life, with local amenities nearby, including primary schools, recreation facilities, and nature walks. While this property shines with contemporary comfort, potential buyers should note that they may wish to enhance broadband connectivity, as speeds are currently slow.

With its exclusive combination of space, charm, and a sought-after location, this modern family home is designed for those looking for a peaceful retreat yet close to township amenities. Act swiftly; properties in this desirable neighborhood won’t last long!

Property Details

Brochure Descriptions

Image Descriptions

Floorplan Description

Rooms

Textual Property Features

Detected Visual Features

EPC Details

Nearby Schools

Nearest Bars And Restaurants

,,,,}

Nearest General Shops

,,}

Nearest Grocery shops

,,}

Nearest Supermarkets

,,}

Nearest Religious buildings

,,}

Nearest Medical buildings

,,,}

Nearest Leisure Facilities

,,,,}

Nearest Tourist attractions

,,}

Nearest Train stations

,,,,}

Nearest Bus stations and stops

,,,,}

Nearest Hotels

,,}

Tags

Local Market Stats

Similar Properties

Meta

High Res Images

Compatible Images

Low res Images

Thumbnails

Raw Images

High Res Floorplan Images

Compatible Floorplan Images

Low res Floorplan Images

FloorplanImages Thumbnail

Raw Floorplan Images