Large garden, garage and strong school catchment — ideal for family renovation projects.
4 bedrooms plus home office potential
Large south-facing rear garden with patio and mature borders
Driveway for multiple vehicles and single garage with side access
Solar water heating already installed
Just one family bathroom; requires modernisation throughout
Offered chain-free on freehold tenure
Close to good primary and secondary schools and M5 access
Very low local crime, fast broadband and excellent mobile signal
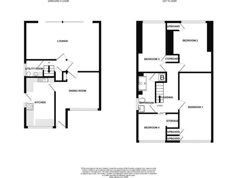
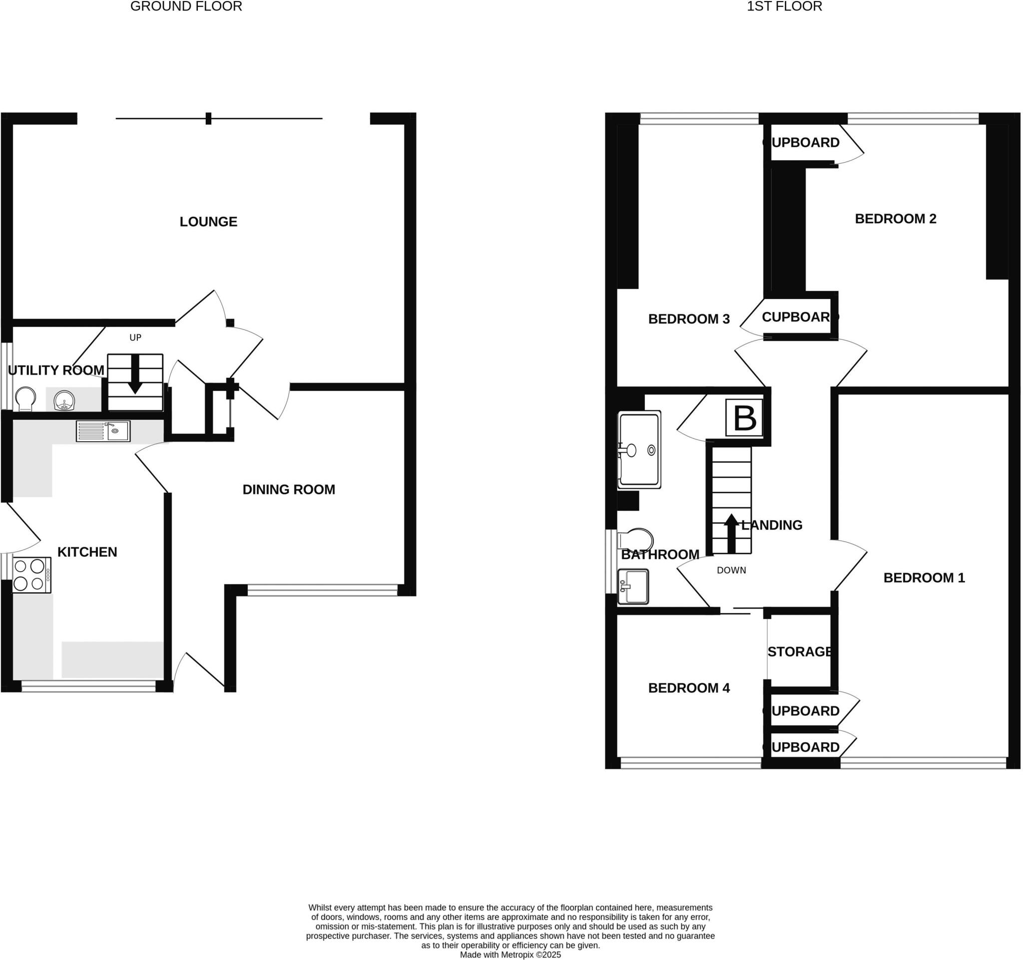
This generous four-bedroom semi sits in desirable Colerne Drive, offered chain-free and ready for a new owner to modernise. The house dates from 1965 and retains period character while presenting clear renovation potential throughout.
Upstairs there are four good-sized bedrooms and a single family bathroom; one room is currently used as a home office. Downstairs offers a large sitting room, separate dining room, kitchen and a useful utility room. The property benefits from solar-powered water heating but requires updating to contemporary standards.
Outside, a large south-facing rear garden, paved patio and mature borders provide spacious outdoor living and excellent sun exposure. Driveway parking for multiple vehicles and a garage accessed via gated side access add practical convenience. Situated near good local schools, shops, bus routes and quick access to J11A of the M5, this home suits a growing family looking to add value.
Important negatives: the house needs renovation throughout (cosmetic and likely modern services upgrades) and has just one bathroom. Buyers should factor refurbishment costs into their plans, though the freehold tenure and no onward chain simplify the purchase.
3 bedroom semi-detached house for sale in Elmgrove Road, Hucclecote, Gloucester, GL3 — £300,000 • 3 bed • 1 bath • 1228 ft²
4 bedroom detached house for sale in Stocken Close, Hucclecote, GL3 — £430,000 • 4 bed • 3 bath • 1393 ft²
3 bedroom detached house for sale in Lynmouth Road, Hucclecote, Gloucester, GL3 — £410,000 • 3 bed • 1 bath • 1583 ft²
4 bedroom detached house for sale in Billbrook Road, Hucclecote, GL3 — £550,000 • 4 bed • 2 bath • 1916 ft²
4 bedroom detached house for sale in St. Barnabas Close, Gloucester, GL1 — £350,000 • 4 bed • 1 bath
4 bedroom detached house for sale in Appleton Way, Hucclecote, Gloucester, Gloucestershire, GL3 — £525,000 • 4 bed • 3 bath • 1426 ft²






































































































