Consent, land and broad conversion potential for experienced buyers.
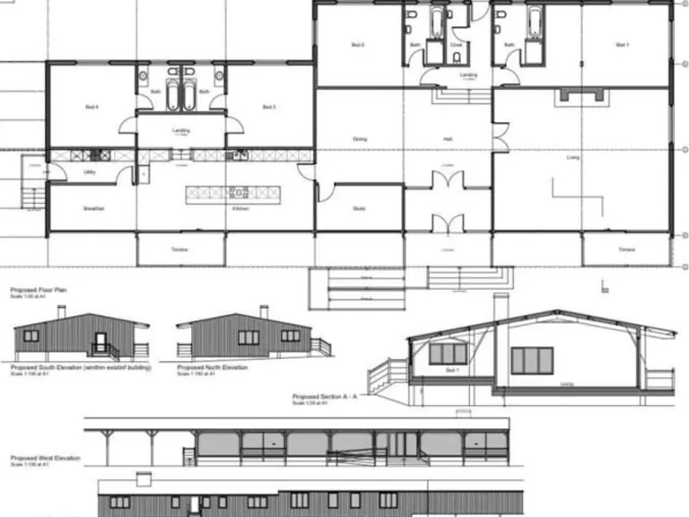
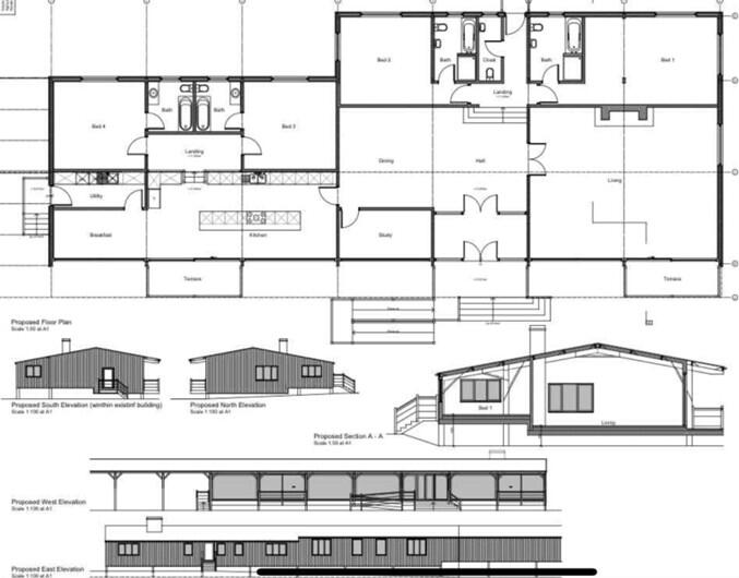
Planning permission granted for 3,645 sq ft four-bedroom conversion
Building Control confirmed material commencement for approved works
Approximately 10.93 acres of pasture with River Uck tributary boundary
Unconverted barns totalling c.7,425 sq ft of additional storage space
Western section of barn in third-party ownership—note title limits
Part of site lies in Flood Zones 2 and 3; mitigation necessary
Shared farm drive access and public footpath crossing the land
Very slow broadband; purchaser responsible for utility connection costs
A rare rural smallholding with consented residential potential and nearly 11 acres of pasture in the High Weald AONB. Part of the timber-framed barn benefits from planning permission (appeal granted) for conversion to a single-storey, split-level four-bedroom home (c.3,645 sq ft). Building Control confirmed a material commencement and several planning conditions have been approved, reducing early-stage planning risk for a buyer prepared to complete the works.
The remainder of the buildings provide significant scope: unconverted timber barn bays (c.3,229 sq ft), an eastern steel-framed barn (c.4,196 sq ft) and ancillary storage offer space for agricultural use, garaging or further redevelopment subject to consent. Services are basic but usable — mains electricity is connected and a water connection is understood to be available, though the purchaser will meet connection costs.
This lot includes about 10.93 acres of pasture bordered by mature hedgerow and a tributary of the River Uck, offering genuine agricultural utility, equestrian use or amenity land. Access is via a shared farm drive; the western barn is in third-party ownership and a public footpath crosses the land — practical matters to resolve during completion.
Buyers should note material constraints: part of the site sits in Flood Zones 2 and 3 (mitigations were included in the approved designs), broadband is very slow and access is shared across third-party land. The property suits a buyer experienced in conversions, an investor seeking a country redevelopment, or someone wanting a private smallholding with scope to expand by separate negotiation.
4 bedroom detached bungalow for sale in Egypt Farm Bungalow, Rushlake Green, TN21 — £850,000 • 4 bed • 1 bath • 1771 ft²
Barn for sale in Barn at Old Mill, Newick Lane, Mayfield. TN20 6RF, TN20 — £500,000 • 4 bed • 3 bath • 2476 ft²
5 bedroom detached house for sale in Cowbeech, East Sussex BN27 — £995,000 • 5 bed • 1 bath • 329 ft²
5 bedroom detached house for sale in Hempstead Lane, Hailsham, BN27 — £1,000,000 • 5 bed • 3 bath • 4451 ft²
Plot for sale in Jarvis Lane, Goudhurst, TN17 — £370,000 • 1 bed • 1 bath
9 bedroom detached house for sale in Frant, Tunbridge Wells, TN3 — £2,750,000 • 9 bed • 1 bath • 11691 ft²










































