Chain-free two-bedroom close to Ramsgate marina and local amenities.
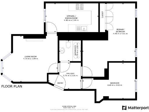
First-floor two-bedroom flat, approximately 753 sq ft
Chain-free sale with share of freehold ownership
Period features: bay window, high ceilings, original fireplace
EPC rating C; mains gas boiler and radiators
Stone walls likely uninsulated; insulation work may be needed
Requires some modernization and updating throughout
Council tax band A — very low annual costs
Local area: high deprivation and above-average recorded crime
Set on the first floor of a period terrace, this two-bedroom flat offers roomy living and classic Victorian features such as a bay window, high ceilings and an original fireplace. At about 753 sq ft, the layout suits a first-time buyer seeking a coastal base or a buy-to-let in Ramsgate’s marina area. The property is chain-free and sold with a share of freehold.
The accommodation is ready to occupy but requires modernization in places; some internal works and updating would increase comfort and value. The building’s stone walls are understood to be uninsulated and there is no confirmed glazing installation date, so buyers should factor potential heating and insulation improvements. EPC rating C and mains gas central heating are positives for running costs.
Location is a key strength: short walks to the seafront, cafes, restaurants and local shops. Council tax band A keeps ongoing costs low. Be aware the local area scores high for deprivation and recorded crime is above average, which may affect long-term rental demand and resale; viewings will show the surrounding neighbourhood first-hand.
2 bedroom flat for sale in Albert Road, Ramsgate, CT11 8DW, CT11 — £125,000 • 2 bed • 1 bath • 447 ft²
2 bedroom flat for sale in Artillery Road, Ramsgate, Kent, CT11 — £160,000 • 2 bed • 1 bath • 729 ft²
1 bedroom flat for sale in Grange Road, Ramsgate, Kent, CT11 — £125,000 • 1 bed • 1 bath • 379 ft²
2 bedroom flat for sale in High Street, Ramsgate, Kent, CT11 — £150,000 • 2 bed • 1 bath • 555 ft²
2 bedroom flat for sale in Addington Street, Ramsgate, CT11 — £150,000 • 2 bed • 1 bath • 629 ft²
2 bedroom flat for sale in St. Mildreds Road, Ramsgate, CT11 — £169,950 • 2 bed • 2 bath • 689 ft²














































