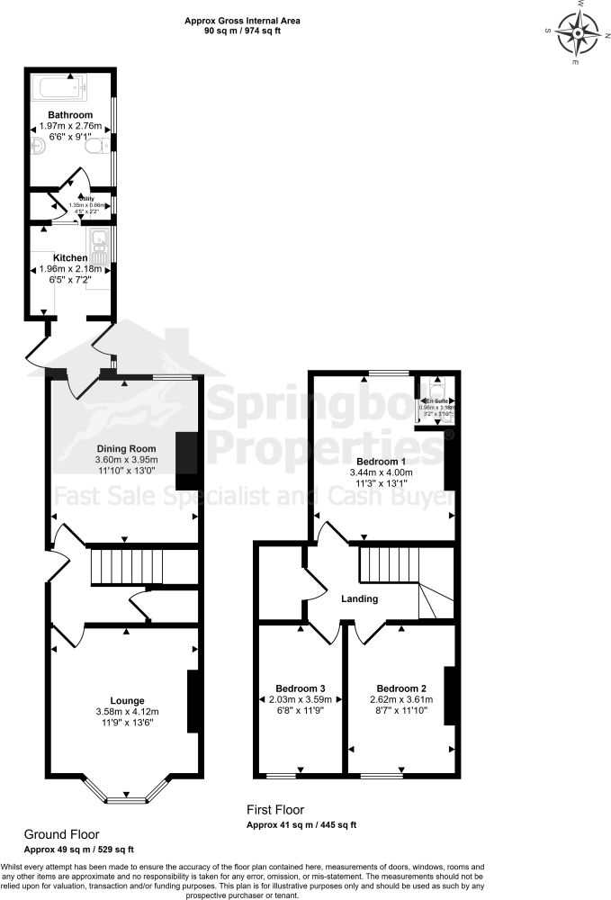
Bay-fronted lounge with modern feature fireplace
Separate dining/reception room; flexible living layout
Three upstairs rooms; main bedroom includes en-suite WC
Enclosed rear garden with lawn, patio and outbuildings
Fitted galley kitchen; rear access to garden
Requires renovation and cosmetic updating throughout
Solid brick walls likely uninsulated; consider energy upgrades
Title anomaly affecting passageway and rooms — legal check advised
A traditional three-bedroom Victorian terrace offering solid bones and clear scope for improvement. The bay-fronted lounge and separate rear reception give flexible living space for first-time buyers or young families, while the enclosed rear garden and useful outbuildings provide outdoor room in a small plot.
The property has practical features: double glazing, gas central heating with boiler and radiators, an upstairs room with an en-suite WC, and a fitted galley kitchen with rear access. Good road links (A511, A38, A42) make commuting to surrounding towns straightforward.
Important to note: the house needs renovation and cosmetic work in places, and the solid brick walls are assumed to have no insulation. There is a title anomaly affecting the passageway and rooms over it (see legal title notes) — buyers should obtain solicitor clarification. Council tax band A means running costs are low.
Overall this is a value-led purchase for a buyer willing to invest time and budget to modernise. It suits first-time buyers seeking a manageable project, or investors targeting rental demand in a well-connected town location.































































































