Ideal for young families seeking bright rooms, garden and easy commuting.
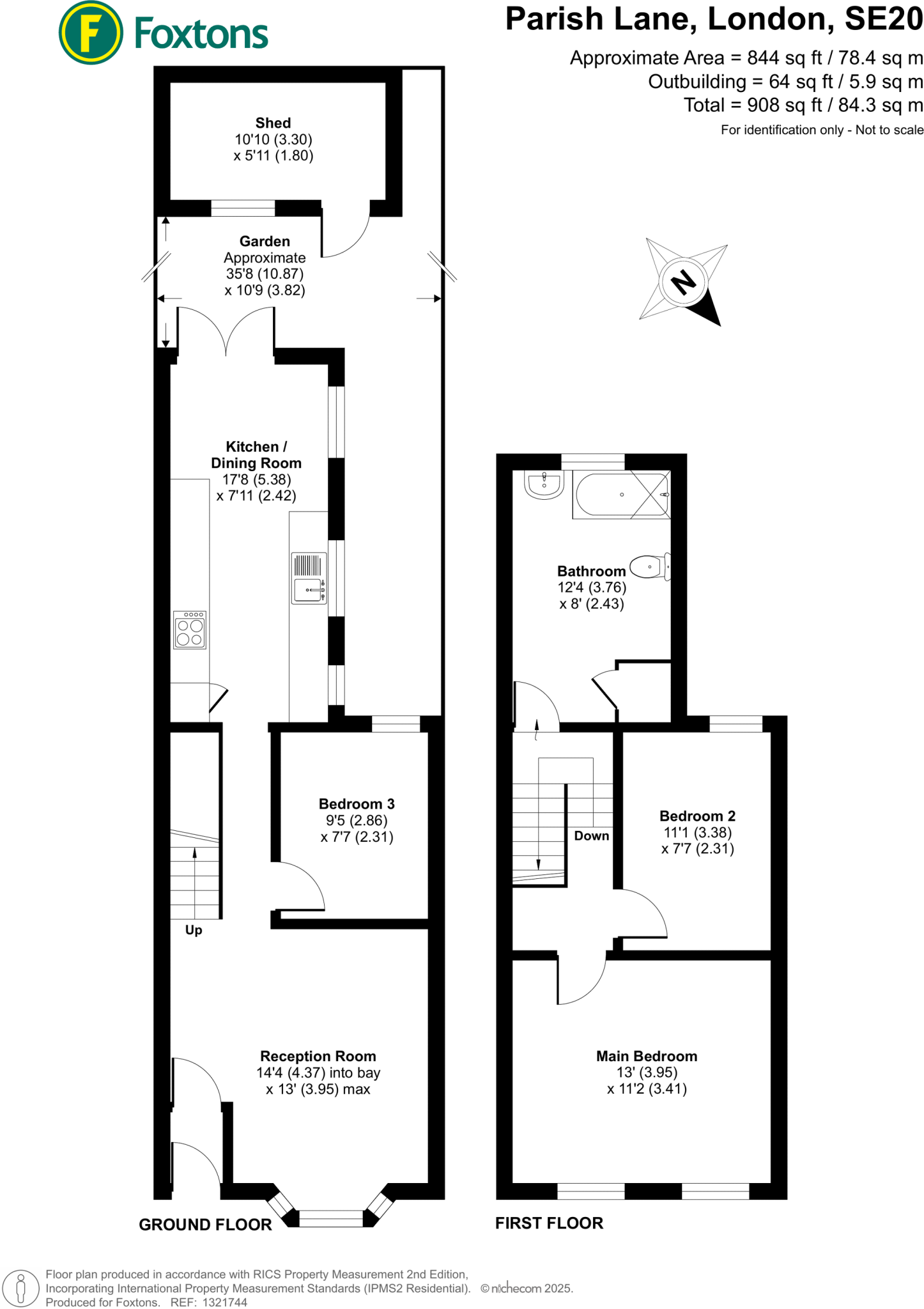
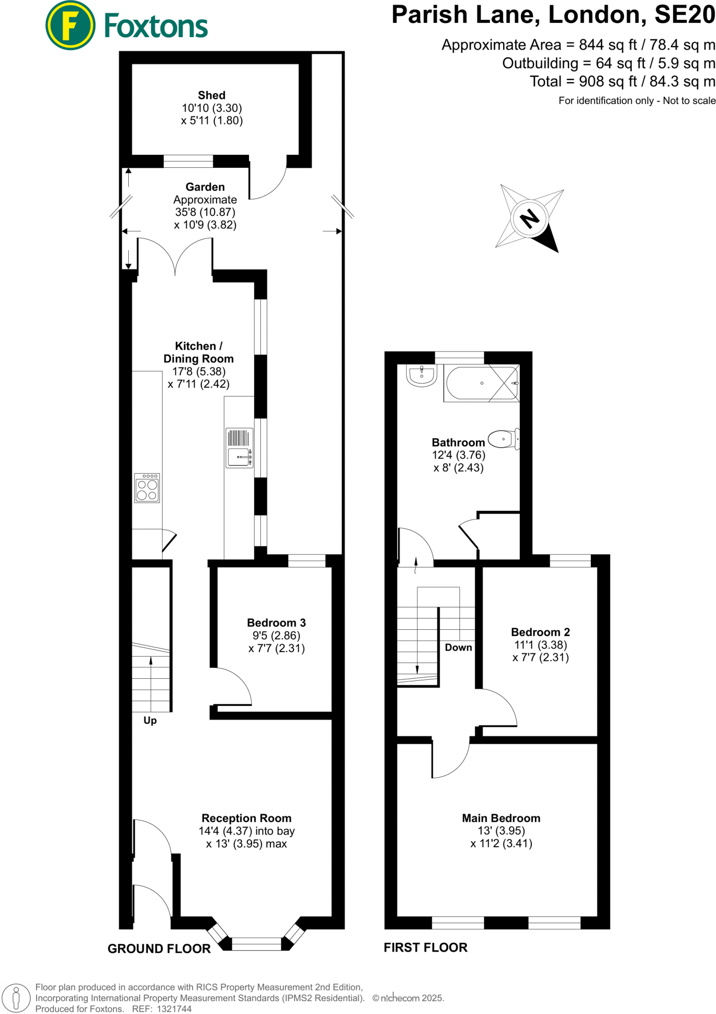
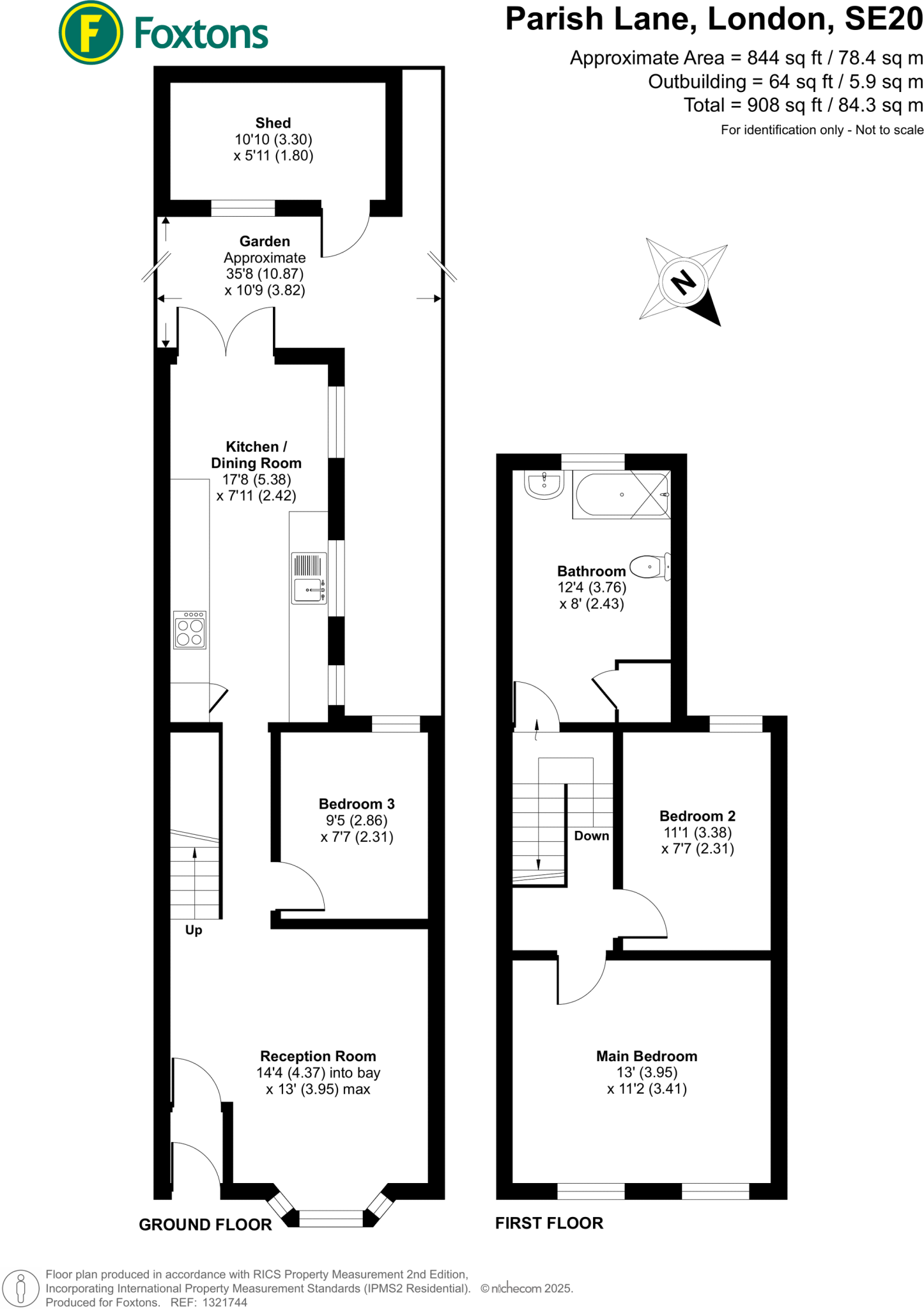
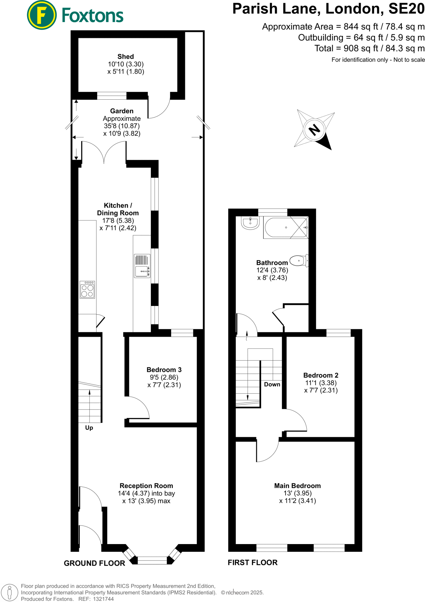
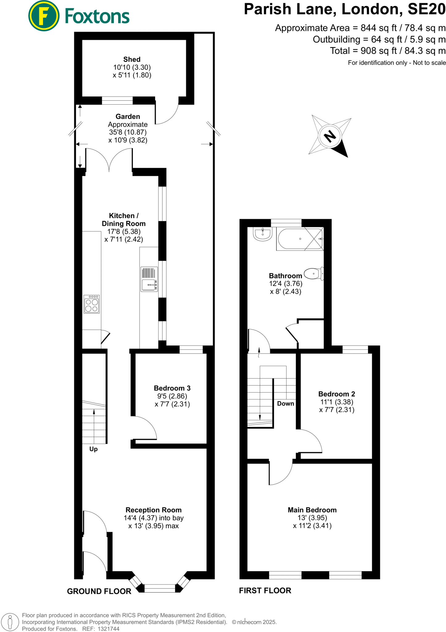
Three bedrooms over two floors, bright reception room
Modern eat-in kitchen with fitted appliances
Private rear garden, small plot size
Single smart bathroom only
Built c.1900–1929; solid brick walls, likely no cavity insulation
Freehold; 908 sq ft overall (average size)
Excellent local transport and fast broadband; mobile signal strong
Nearby highly rated primary and secondary schools
This Victorian mid-terrace provides a practical, well-presented home for commuters and young families. Across two floors it offers a bright reception room, a modern eat-in kitchen with fitted appliances, and three well-proportioned bedrooms. A private rear garden and a sensible 908 sq ft layout give everyday space and outdoor use rare for the area.
The location is one of the house’s strengths: moments from Cator Park and local shops on Beckenham Road, with Kent House station and bus routes nearby for quick journeys into central London. Local schools include several highly rated primaries and secondaries, making the house appealing to families seeking short school runs.
Built c.1900–1929 with solid brick walls and double glazing, the property is gas‑heated via a boiler and radiators and sold freehold. Note there is a single bathroom and the plot is small, so outdoor space and bathroom access are limited compared with larger homes. The property may benefit from insulation improvements to the original walls if a buyer wants better thermal performance.
Overall this is a sensible, family-friendly home in an inner‑city, commuter-oriented neighbourhood. It suits buyers who want ready-to-live-in accommodation with scope to update over time rather than a full renovation project.
3 bedroom terraced house for sale in Parish Lane, Penge, London, SE20 — £550,000 • 3 bed • 2 bath • 1051 ft²
3 bedroom end of terrace house for sale in Elfrida Crescent, Sydenham, London, SE6 — £475,000 • 3 bed • 1 bath • 950 ft²
3 bedroom terraced house for sale in Elmers End Road, Penge, London, SE20 — £665,000 • 3 bed • 2 bath • 1433 ft²
2 bedroom terraced house for sale in Sultan Street, Beckenham, BR3 — £425,000 • 2 bed • 1 bath • 572 ft²
3 bedroom terraced house for sale in Elmers End Road, London, SE20 — £700,000 • 3 bed • 1 bath • 1368 ft²
3 bedroom end of terrace house for sale in Villiers Road, Beckenham, BR3 — £600,000 • 3 bed • 1 bath • 934 ft²


















































































































































































































