Spacious three-bedroom, secure parking and concierge in the heart of Greenwich..
Chain-free three double bedrooms and two bathrooms
EWS1 A1 rating — compliant for mortgage lending
Secure off-street parking space and on-site concierge
Open-plan living with balcony and large windows
Close to Greenwich DLR, mainline stations and parks
Near several well-regarded primary and secondary schools
Leasehold tenure — check lease length, service charges
Community mains-gas heating; built circa 2012+
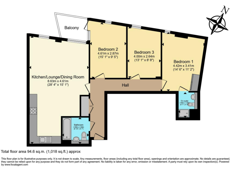
A bright, chain-free three-bedroom apartment on the sixth floor of a modern Greenwich development, ideal for families seeking space and convenience. The open-plan living area and floor-to-ceiling windows maximise natural light, while a private balcony provides an outdoor spot overlooking the landscaped courtyard. The principal bedroom includes an en-suite; two further double bedrooms suit children, guests or a home office.
Practical benefits include a secure off-street parking space, on-site concierge, lifts and an EWS1 A1 rating confirming current fire-safety compliance and mortgageability. The apartment sits within easy walking distance of Greenwich town centre, Blackheath village, Greenwich DLR and mainline stations, plus excellent local parks and a number of well-regarded primary and secondary schools.
Notable facts to consider: the property is leasehold (details should be checked with your conveyancer), and heating is provided via a community mains-gas scheme. The flat was constructed in the 2012+ period and is double-glazed, offering relatively low maintenance and modern finishes. Offered at 1,018 sq ft, it provides generous internal space for family living but sits on the sixth floor, which may matter for mobility or access preferences.
With very low flood risk and a peaceful courtyard setting, this apartment balances city commuting with green open spaces—suitable for growing families, professionals and investors seeking reliable rental appeal in sought-after Greenwich.
3 bedroom apartment for sale in Norman Road, Greenwich, SE10 — £550,000 • 3 bed • 2 bath • 963 ft²
3 bedroom flat for sale in Springham Walk, Greenwich, SE10 — £650,000 • 3 bed • 2 bath • 905 ft²
2 bedroom flat for sale in John Donne Way, London, SE10 — £500,000 • 2 bed • 2 bath • 1619 ft²
2 bedroom apartment for sale in Kew House, Greenwich, SE10 — £450,000 • 2 bed • 1 bath • 745 ft²
3 bedroom apartment for sale in Dowells Street London SE10 — £665,000 • 3 bed • 2 bath • 811 ft²
2 bedroom apartment for sale in John Donne Way, Greenwich, SE10 — £525,000 • 2 bed • 2 bath • 835 ft²


































































