Chain-free two-bedroom flat minutes from Fleet High Street and the train station..
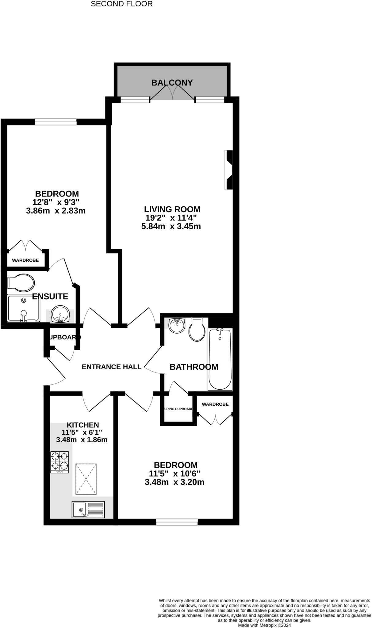
- Two double bedrooms; main bedroom with en suite shower
- Balcony facing communal gardens; pleasant outdoor space
- Allocated off-street parking included
- Long lease: circa 135 years remaining (as of July 2024)
- EPC: C (77); constructed 2003–2006
- Electric room heaters (no gas central heating) — can raise energy costs
- Service charge £144 pcm; ground rent £250 pa — check review dates
- Local area records higher crime levels; investigate neighbourhood safety
A well-located two-bedroom apartment just a short walk from Fleet High Street and the train station. The largest bedroom benefits from an en suite shower room, while the living/dining room opens onto a balcony overlooking tidy communal gardens — a practical outdoor spot for morning coffee.
The layout centres on a spacious hallway leading to two double bedrooms, a skylit kitchen and a family bathroom. Allocated off-street parking and a long lease (approx. 135 years) increase ownership security, and the EPC C rating is above average for apartments of this age.
Practical buyers should note the property relies on electric room heaters rather than a gas central system, which can increase running costs. The development has a modest service charge and small ground rent, but the area records higher local crime levels — worth checking for personal priorities. Chain-free sale and compact 526 sq ft size make this most suitable for first-time buyers, couples or buy-to-let investors seeking a central Fleet location.
2 bedroom apartment for sale in Old Dairy Close, Fleet, GU51 — £235,000 • 2 bed • 1 bath • 646 ft²
1 bedroom flat for sale in Reading Road South, Fleet, Hampshire, GU52 — £175,000 • 1 bed • 1 bath • 388 ft²
2 bedroom flat for sale in Chestnut Close, Fleet, Hampshire, GU51 — £270,000 • 2 bed • 1 bath • 545 ft²
2 bedroom flat for sale in Fleet Road, Fleet, Hampshire, GU51 — £225,000 • 2 bed • 1 bath • 562 ft²
2 bedroom apartment for sale in Fleet Road, Fleet, GU51 — £225,000 • 2 bed • 2 bath • 815 ft²
1 bedroom apartment for sale in Old Dairy Close, Fleet, Hampshire, GU51 — £180,000 • 1 bed • 1 bath • 540 ft²










































