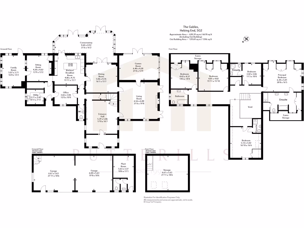
Spacious five-bedroom retreat with triple garage and huge private grounds.
About 1.88 acre mature plot backing onto open countryside
Set back from a quiet lane in Benington, this substantial five-bedroom house occupies about 1.88 acres and backs onto open countryside. At roughly 5,282 sq ft of living space, the property is arranged around a dramatic central hall with a double-height ceiling and galleried landing, providing generous reception rooms, a conservatory and multiple flexible spaces for family life and home working.
The mature grounds, terraces and extensive outbuildings suit outdoor entertaining, play and hobby use. A triple garage/outbuilding offers strong potential for conversion to a self-contained annexe or dedicated office, subject to usual planning consents — a key selling point for multigenerational living or working-from-home needs.
There are practical factors to note: the house is timber framed with no known cavity insulation (assumed), double glazing install date is unknown and the main heating is an oil-fired boiler. Energy performance is currently rated D, so buyers should expect potential improvement and running-cost work, including insulation upgrades and heating review.
Location strengths include very low local crime, excellent mobile signal, an affluent village community with good primary schooling and easy road access to Stevenage and Hertford. Commuters can reach Stevenage or Hertford, with rail links into London. This property suits a family seeking privacy, space and countryside living, while buyers with renovation appetite will find clear scope to add contemporary energy performance and tailored living accommodation.
4 bedroom detached house for sale in Highgrove Close, Benington, Hertfordshire, SG2 — £735,000 • 4 bed • 3 bath • 1932 ft²
5 bedroom detached house for sale in Benington, Nr Hertford, SG2 — £1,850,000 • 5 bed • 4 bath • 3250 ft²
4 bedroom house for sale in Hebing End, Benington, SG2 — £700,000 • 4 bed • 1 bath • 1712 ft²
4 bedroom detached house for sale in Whempstead Road, Benington, SG2 — £1,250,000 • 4 bed • 3 bath • 3292 ft²
4 bedroom detached bungalow for sale in Hebing End, Benington, Stevenage, SG2 — £850,000 • 4 bed • 2 bath • 1839 ft²
4 bedroom detached house for sale in Throcking Road, Cottered, SG9 — £1,000,000 • 4 bed • 2 bath • 2749 ft²






















































































































