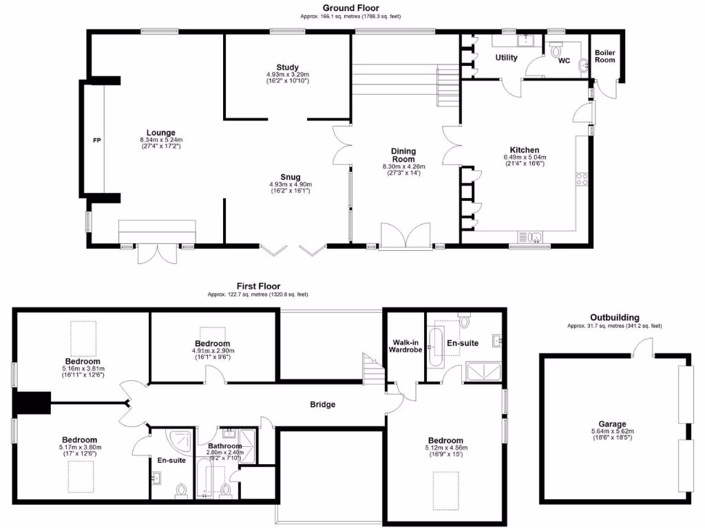
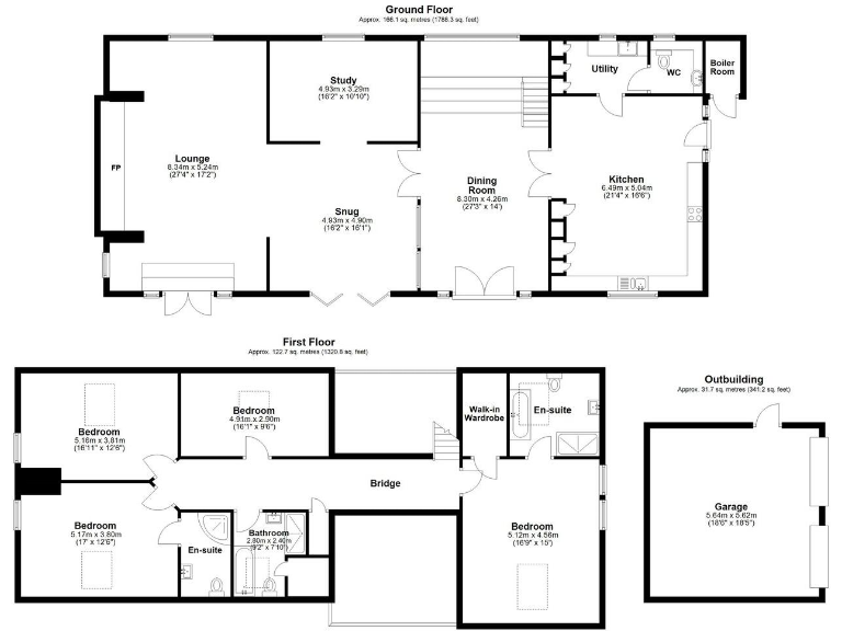
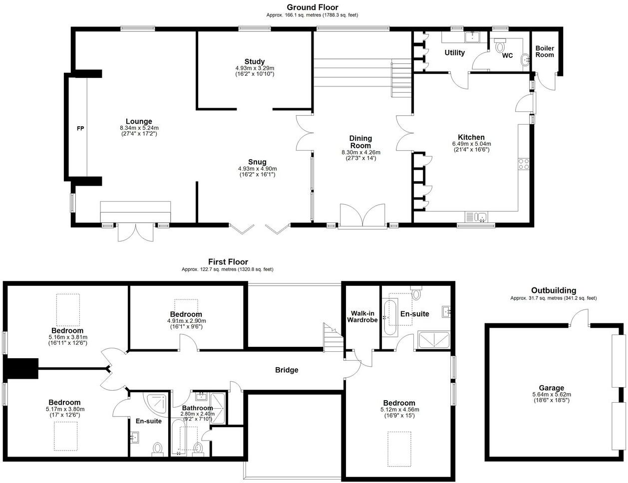
Circa 3,100 sq ft barn conversion with south garden, double garage and strong period character..
Extremely spacious circa 3,100 sq ft barn conversion with high ceilings and exposed beams.;South-facing garden on a decent plot, ideal for families and entertaining.;Detached double garage with room above plus off-road parking.;Four bedrooms; three bathrooms, including two en‑suites and family bathroom.;Large living room with open fire — strong period character and charm.;EPC rating C; built circa 1996–2002; double glazing (install dates unknown).;Heated by oil boiler — higher running costs and independent fuel supply.;Very slow broadband locally; mobile signal excellent; local crime above average and council tax quite expensive.
This substantial 4-bedroom detached barn conversion sits on the edge of Saltwood and offers circa 3,100 sq ft of versatile living space across multiple levels. High ceilings, exposed beams and a dramatic galleried landing create strong period character, while a modern kitchen/diner, utility room and three bathrooms (two en‑suites) provide practical family living. The south-facing garden and generous plot give plenty of outdoor space for children and summer entertaining.
Practical benefits include a detached double garage with room above and off-road parking for several cars. The principal living room centres on a large open fire, creating a welcoming focal point for colder months. The property was built in the late 1990s/early 2000s as a barn conversion and has double glazing; the EPC rating is C.
Notable considerations: the home is heated by an oil-fired boiler and is not on a community heating supply, which affects running costs and may concern buyers used to gas or electric systems. Broadband speeds in the area are very slow, so remote workers must weigh that limitation despite excellent mobile signal. Local crime statistics are above average and council tax costs are described as quite expensive. These are material factors to consider alongside the property’s scale and character.
This property will appeal to families seeking rural character near good local schools and open countryside, or buyers looking for a spacious, distinctive home with room for home working and hobbies. Viewings are recommended to appreciate the room sizes, unique features and outside space in person.
2 bedroom barn conversion for sale in Grange Road, Saltwood, Hythe, CT21 — £450,000 • 2 bed • 1 bath • 737 ft²
4 bedroom detached house for sale in Mersham, Ashford, Kent, TN25 — £1,250,000 • 4 bed • 3 bath • 2541 ft²
4 bedroom semi-detached house for sale in Gosmere Farm Barns, Newhouse Lane, Sheldwich, ME13 — £899,995 • 4 bed • 2 bath • 3500 ft²
5 bedroom barn conversion for sale in Dover Road, Westcliffe, Dover, Kent, CT15 — £1,325,000 • 5 bed • 5 bath • 4112 ft²
4 bedroom barn conversion for sale in Homestall Lane, Goodnestone, Faversham, Kent, ME13 — £1,050,000 • 4 bed • 3 bath • 3802 ft²
5 bedroom barn conversion for sale in Great Chart, Ashford, TN23 — £1,150,000 • 5 bed • 4 bath • 1324 ft²






















































































