**Standout Features:**
- Unique period semi-detached property with original features
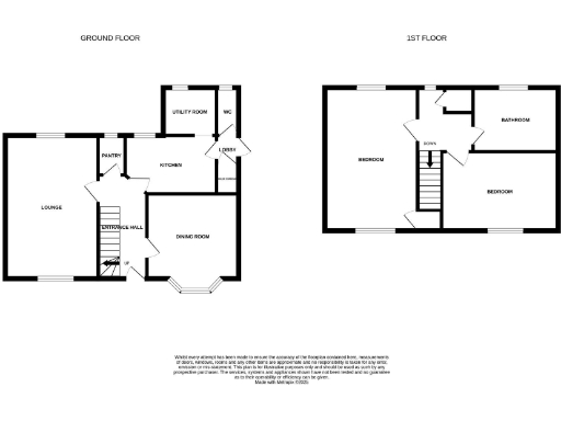
- Spacious layout with two large double bedrooms, lounge, and dining room
- Expansive garden on an almost quarter-acre plot
- Recent updates include a new tiled roof and modern kitchen
- Potential to extend, subject to planning permissions
- Garage, greenhouse, and good off-road parking available
- Chain-free and first time on the market in three generations
Nestled at the end of a quiet cul-de-sac in Thorpe St. Andrew, this impeccably presented semi-detached period property offers a perfect blend of historic charm and modern living. Spread over approximately 944 sq ft, the interior boasts two generous reception rooms flooded with light through large sash windows, creating an inviting atmosphere ideal for family gatherings or cozy evenings. The recently updated kitchen features stylish oak worktops and provides easy access to a utility space, enhancing both functionality and convenience.
Outside, the expansive garden serves as a private retreat, showcasing mature trees and a terraced seating area—perfect for summer entertaining or gardening enthusiasts. With both gas central heating and double glazing, the property ensures year-round comfort. Located near well-regarded schools and essential local amenities, this home promises both tranquillity and connectivity. Don't miss the opportunity to make this unique residence your own—properties like this, rich in character and scope for personalization, are seldom available.
4 bedroom semi-detached house for sale in Norwich, NR7 — £575,000 • 4 bed • 1 bath • 1348 ft²
3 bedroom detached house for sale in Stanley Avenue, Thorpe St Andrew, NR7 — £530,000 • 3 bed • 3 bath • 1821 ft²
3 bedroom semi-detached house for sale in Plumstead Road East, Thorpe St Andrew, NR7 — £425,000 • 3 bed • 1 bath • 1012 ft²
3 bedroom semi-detached house for sale in Birkbeck Way, Thorpe St. Andrew, NR7 — £280,000 • 3 bed • 2 bath • 1124 ft²
4 bedroom semi-detached house for sale in St. Andrews Close, Thorpe St Andrew, NR7 — £595,000 • 4 bed • 2 bath • 1820 ft²
3 bedroom semi-detached house for sale in Yarmouth Road, Thorpe St Andrew, NR7 — £450,000 • 3 bed • 2 bath • 953 ft²














































































































