**Standout Features:**
- Newly renovated, Victorian mid-terrace home
- Two spacious bedrooms with period features
- Hall entrance with charming character
- Modern kitchen with integrated appliances and garden access
- Low-maintenance front and non-bisected rear garden
- Chain-free sale for quick occupancy
- Excellent location in desirable Thorpe Hamlet, near amenities and Norwich city center
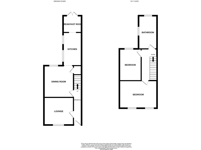
This recently renovated Victorian mid-terrace house is located on a sought-after tree-lined road in the heart of Thorpe Hamlet, making it an ideal home for couples or small families. With two generous bedrooms and a charming hall entrance, the property retains period features while offering modern living comforts. The ground floor showcases a cozy lounge with a cast iron fireplace, a dining room, and a sleek kitchen that opens onto a non-bisected rear garden, perfect for al fresco dining or quiet reflection.
Enjoy the convenience of no onward chain and quick access to local amenities, including schools recognized for their outstanding performances, parks, and the vibrant atmosphere of Norwich city center just a stroll away. With fast broadband and gas central heating, this home promises both comfort and efficiency. Don't miss the opportunity to make this beautifully refurbished property your own; schedule a viewing today!
2 bedroom terraced house for sale in Guelph Road, Thorpe Hamlet, NR1 — £225,000 • 2 bed • 1 bath • 614 ft²
2 bedroom terraced house for sale in Rosary Road, Thorpe Hamlet, NR1 — £260,000 • 2 bed • 1 bath • 818 ft²
2 bedroom terraced house for sale in Hughenden Road, Norwich, NR1 — £300,000 • 2 bed • 2 bath • 786 ft²
2 bedroom terraced house for sale in Dereham Road, Norwich, NR2 — £310,000 • 2 bed • 2 bath • 893 ft²
2 bedroom terraced house for sale in Ella Road, Norwich, NR1 — £210,000 • 2 bed • 2 bath • 623 ft²
3 bedroom semi-detached house for sale in Kerrison Road, NR1 — £269,950 • 3 bed • 1 bath • 803 ft²


















































