Practical three-bedroom home with private garden and parking.
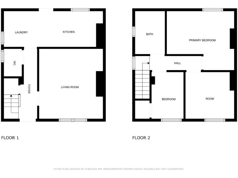
3 bedrooms in a compact 775 sq ft layout
Private rear garden with lawn, patio and shed
Secure off-street parking via paved driveway
Double-glazed windows installed post-2002
Mains gas boiler and radiators; efficient heating
FTTC broadband and excellent mobile signal
Located in very deprived area; above-average crime rate
Single bathroom; limited internal living space
This three-bedroom semi-detached house on Clark Avenue offers a compact, practical family home with a private rear garden and off-street parking. The living spaces are bright and functional, with a modern kitchen linking directly to the garden and a comfortable lounge ideal for everyday family life.
The property benefits from double glazing, mains gas central heating with a boiler and radiators, and FTTC broadband — practical comforts for commuting households. At about 775 sq ft, the layout suits a young family or couple wanting a manageable home close to transport links into Newport, Cardiff and the M4 corridor.
Buyers should note material location and size factors: the property sits in a very deprived area with above-average crime statistics, and the overall internal size is small. There is a single bathroom and limited living space compared with larger family houses. These are important when assessing suitability and future resale or rental prospects.
For purchasers willing to accept the neighbourhood challenges, this freehold home presents a straightforward, move-in-ready base with scope for cosmetic improvement. The decent plot and private rear garden also give practical options for extending or improving outdoor living over time, subject to planning and building considerations.
3 bedroom semi-detached house for sale in Clark Avenue, Pontnewydd, NP44 — £270,000 • 3 bed • 1 bath • 1005 ft²
3 bedroom semi-detached house for sale in St. Julians Road, Newport, NP19 — £260,000 • 3 bed • 1 bath • 904 ft²
3 bedroom semi-detached house for sale in Llanwern Road, Newport, NP19 — £300,000 • 3 bed • 2 bath • 1044 ft²
3 bedroom semi-detached house for sale in Graig Park Circle, Newport, NP20 — £220,000 • 3 bed • 1 bath • 786 ft²
3 bedroom detached house for sale in Beechwood Road, Newport, NP19 — £330,000 • 3 bed • 2 bath • 1255 ft²
3 bedroom semi-detached house for sale in Mulcaster Avenue, Newport, NP19 — £190,000 • 3 bed • 1 bath • 804 ft²






































































































