Ready-to-move-in three-bedroom with large garden and excellent school catchments.
Extended three-bedroom semi-detached house
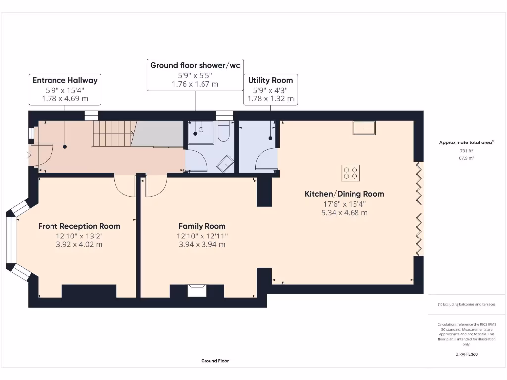
This extended three-bedroom semi-detached house combines contemporary styling with practical family living across two floors. The highlight is a bright, open-plan kitchen/dining/family room with bi-fold doors and skylights, creating a large social heart for day-to-day life and entertaining. A separate front reception room gives flexible living or a home-office option.
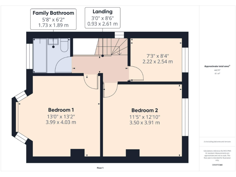
Upstairs provides two large double bedrooms and a smaller double, served by a modern family bathroom; a ground-floor shower room/WC adds practical convenience for busy households. Throughout the property the décor is chic and contemporary, with double glazing and mains gas central heating via boiler and radiators.
Outside there is ample off-street parking to the front and side and a private, enclosed rear garden with a spacious terrace and lawn — a decent plot for outdoor play and summer dining. Broadband speeds are fast and mobile signal is excellent, and the house sits within strong Welsh and English medium school catchments.
Notable points to consider: the property was constructed c.1930–1949 and the cavity walls are assumed to have no insulation. The local area scores as very deprived with above-average crime statistics, and council tax is described as expensive. Tenure information is not provided and should be confirmed early in the purchase process.
3 bedroom semi-detached house for sale in Bardsey Crescent, Llanishen, Cardiff. CF14 — £315,000 • 3 bed • 1 bath • 918 ft²
3 bedroom semi-detached house for sale in Heol Lewis, Cardiff. CF14 — £450,000 • 3 bed • 1 bath • 849 ft²
3 bedroom semi-detached house for sale in Fidlas Road, Cardiff. CF14 — £400,000 • 3 bed • 1 bath • 1004 ft²
4 bedroom house for sale in Everest Avenue, Llanishen, Cardiff, CF14 — £500,000 • 4 bed • 1 bath • 1846 ft²
3 bedroom semi-detached house for sale in St. Helens Court, Caerphilly, CF83 — £320,000 • 3 bed • 1 bath • 990 ft²
3 bedroom semi-detached house for sale in Extended Period House, Gaer Park Lane, Newport, NP20 — £310,000 • 3 bed • 2 bath • 1116 ft²














































































































