Contemporary 3-bed family home with garage and low-maintenance garden in sought-after St Marys Park..
- Built 2023 — modern fixtures and low maintenance
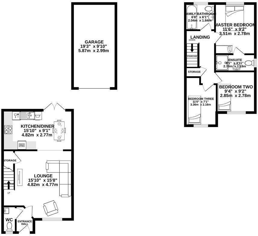
- Open-plan kitchen/diner with patio doors to garden
- Principal bedroom with en-suite shower room
- Amtico flooring on ground floor, contemporary finishes
- Tandem driveway for up to three cars plus detached garage
- Landscaped rear garden with artificial lawn — low maintenance
- Small overall size: c.735 sq ft and modest plot
- Service charge £109pa; council tax band D
A modern three-bedroom semi in the St Marys Park development, finished in 2023 and ready for family life. The ground floor offers an open-plan lounge into a kitchen/diner with Amtico flooring and patio doors that open onto a landscaped rear garden with artificial lawn — low maintenance and child-friendly.
Upstairs provides three bedrooms, including an en-suite to the principal room, plus a family bathroom. Built-in wardrobes, contemporary fixtures and good natural light create comfortable, move-in-ready accommodation totalling about 735 sq ft.
Practical benefits include a large tandem driveway for multiple cars and a detached single garage. The home sits within local school catchments rated Good, and has fast broadband and strong mobile signal — convenient for commuting and family needs.
Drawbacks to note: the overall property and plot are small, so outdoor space and internal room sizes are modest. There is a service charge of £109 per year and council tax at band D. Buyers looking for larger gardens or significantly bigger rooms should consider this when viewing.
4 bedroom detached house for sale in The Cawsey, Penwortham,
Preston,
PR1 — £332,750 • 4 bed • 1 bath • 1169 ft²
3 bedroom semi-detached house for sale in The Cawsey, Penwortham,
Preston,
PR1 — £261,750 • 3 bed • 1 bath • 874 ft²
4 bedroom detached house for sale in The Cawsey, Penwortham,
Preston,
PR1 — £368,750 • 4 bed • 1 bath • 1326 ft²
4 bedroom detached house for sale in The Cawsey, Penwortham,
Preston,
PR1 — £368,750 • 4 bed • 1 bath • 1325 ft²
4 bedroom detached house for sale in The Cawsey, Penwortham,
Preston,
PR1 — £369,750 • 4 bed • 1 bath • 1326 ft²
4 bedroom detached house for sale in The Cawsey, Penwortham,
Preston,
PR1 — £397,750 • 4 bed • 1 bath • 1424 ft²


























































