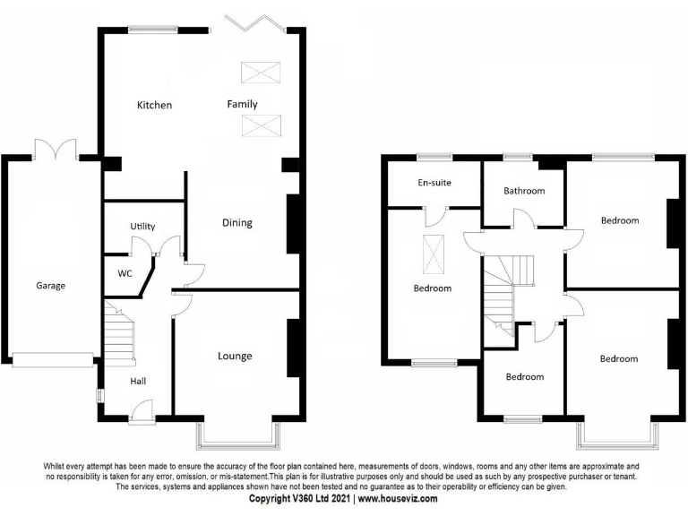
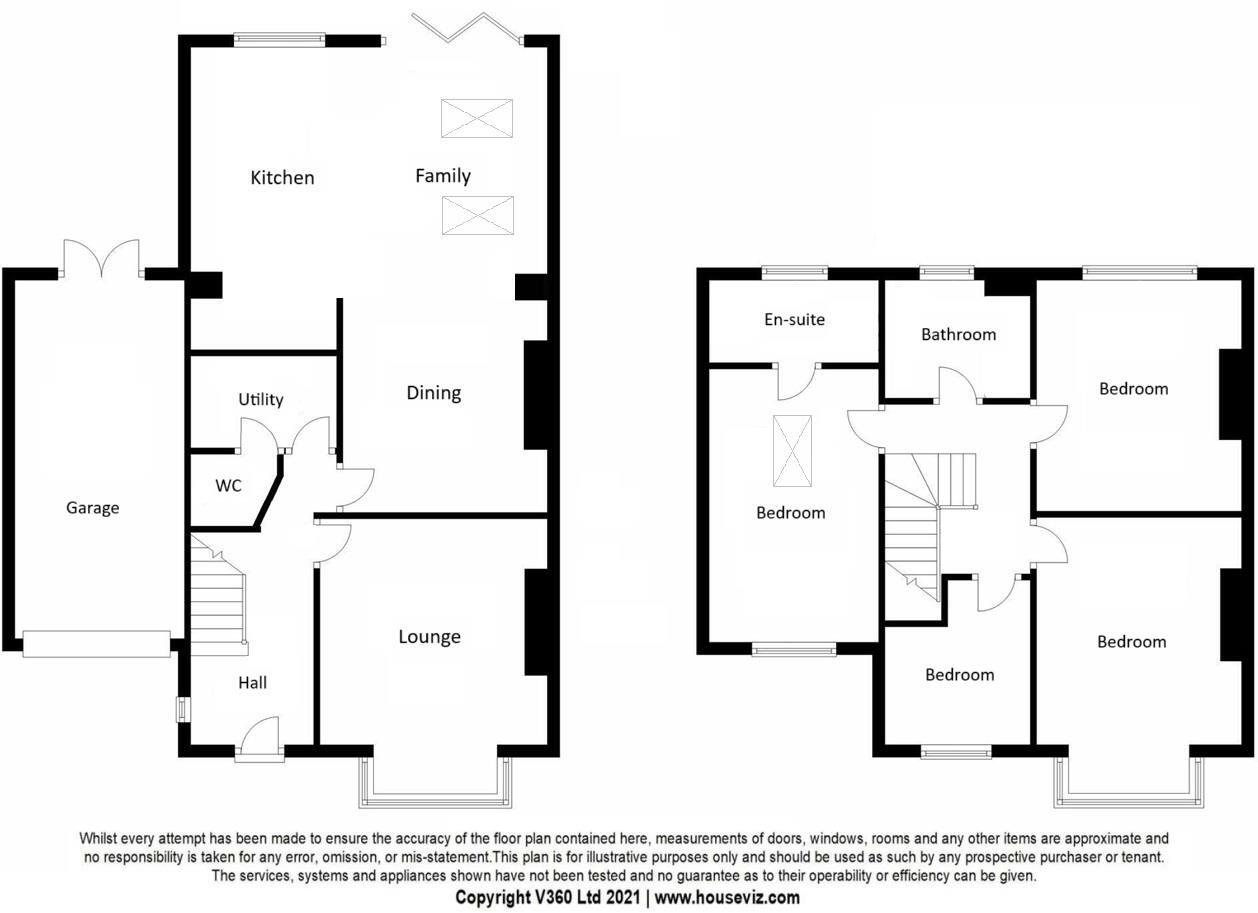
**Standout Features:**
- Extended 4-bedroom detached home
- Master bedroom with ensuite
- Open-plan kitchen/family/dining area with bi-folding doors and Velux roof windows
- Converted outbuilding suitable for home office or gym
- South-facing rear garden, perfect for outdoor living
- Off-street parking and single garage
- Immaculate presentation with modern features
**Concerns:**
- Average crime rates in the area
- Situated in a suburban environment
**Summary:**
Presenting an outstanding four-bedroom detached house in the desirable Hartburn Village, this beautifully extended home impresses with its exceptional quality and style. As you step into the entrance hall, the stylish panelling and open spindle staircase set the tone for the rest of the house. The lounge, featuring a cozy log-burning stove and bay window, offers an inviting retreat, while the spectacular open-plan kitchen/family/dining area becomes the heart of the home, enhanced by bi-folding doors, Velux roof windows, and a modern kitchen equipped with integrated appliances.
Upstairs, the master bedroom boasts its own ensuite, complemented by two further double bedrooms, a single bedroom, and a modern family bathroom. Outside, enjoy the sunny south-facing rear garden, perfect for family gatherings. A noteworthy asset is the versatile converted outbuilding, ideal for a gym, office, or relaxation space. With off-street parking, a single garage, and proximity to local amenities, schools, and easy commuting routes, this property is perfect for families seeking a comfortable, stylish home ready for immediate enjoyment. Don't miss your chance; opportunities like this in Hartburn are rare!
3 bedroom semi-detached house for sale in Westborough Grove, Hartburn TS18 5PW, TS18 — £220,000 • 3 bed • 1 bath • 938 ft²
4 bedroom detached house for sale in Ainderby Grove, Hartburn, TS18 — £380,000 • 4 bed • 2 bath • 915 ft²
4 bedroom semi-detached house for sale in Stockton-on-Tees, Durham, TS18 — £205,000 • 4 bed • 2 bath • 1237 ft²
4 bedroom semi-detached house for sale in Tunstall Road, Stockton-on-Tees, Durham, TS18 — £240,000 • 4 bed • 2 bath • 1309 ft²
4 bedroom detached house for sale in Greens Grove, Stockton-On-Tees, TS18 — £330,000 • 4 bed • 1 bath • 1078 ft²
3 bedroom semi-detached house for sale in Highfield Crescent, Hartburn, TS18 5HH, TS18 — £235,000 • 3 bed • 1 bath • 1077 ft²






























































































































