Create a spacious family home with countryside views and village convenience.
Full planning permission for a two‑storey four‑bed dwelling (Ref 22/06985/FU).
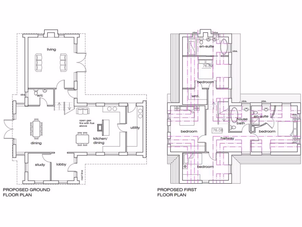
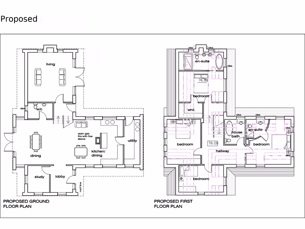
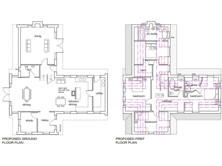
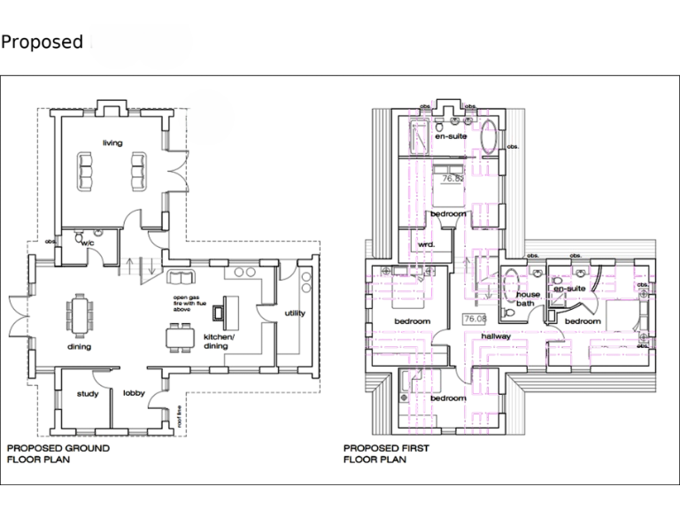
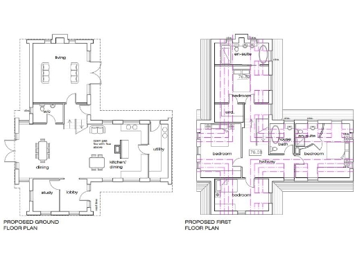
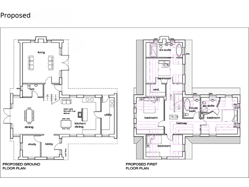
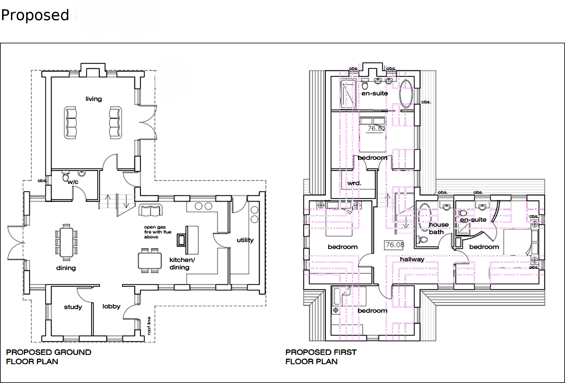
This is a rare individual building plot with full planning permission (Application No. 22/06985/FU) for a two‑storey detached four‑bedroom home of approximately 2,900 sq ft, set in the heart of Bardsey. The site sits on a large, private plot backing onto open countryside, offering uninterrupted greenbelt views and generous garden space for family use or landscaping.
The village setting combines historic character with modern convenience: good local primary schools, nearby Wetherby for wider shopping and leisure, and easy road links to Leeds, Harrogate and York. Broadband speeds and mobile signal are reported as fast and excellent, helping when working from home or staying connected.
Buyers should note this is a cleared building plot requiring full construction to the approved plans — the purchase will involve the costs and work of a new build project. There is a medium flooding risk recorded for the area; prospective purchasers should commission site‑specific surveys and consult planning and insurance advisers. Council tax and some service details are not specified and will be confirmed post‑purchase.
For families seeking a bespoke home in an affluent, low‑crime village with strong community amenities, this plot delivers scale, privacy and rural outlooks with planning in place. For developers or self‑builders it presents clear scope to deliver a substantial new family residence in a highly desirable LS17 location.
Plot for sale in Oak Road, Cowthorpe, LS22 — £225,000 • 4 bed • 2 bath • 1840 ft²
1 bedroom detached house for sale in South Mount, East Keswick, LS17 — £125,000 • 1 bed • 1 bath • 635 ft²
3 bedroom detached house for sale in Cornmill Close, Bardsey, LS17 — £525,000 • 3 bed • 1 bath • 1111 ft²
5 bedroom detached house for sale in Congreve Way, Bardsey, LS17 — £1,350,000 • 5 bed • 5 bath • 3767 ft²
4 bedroom detached house for sale in Bingley Bank, Bardsey, LS17 — £585,000 • 4 bed • 1 bath • 1356 ft²
Plot for sale in Oak Road, Cowthorpe, LS22 — £200,000 • 3 bed • 2 bath • 1694 ft²






































