Ready consent near Bath and Bristol for a compact premium development.
Full planning permission for six detached 3-storey homes (3–4 beds each)
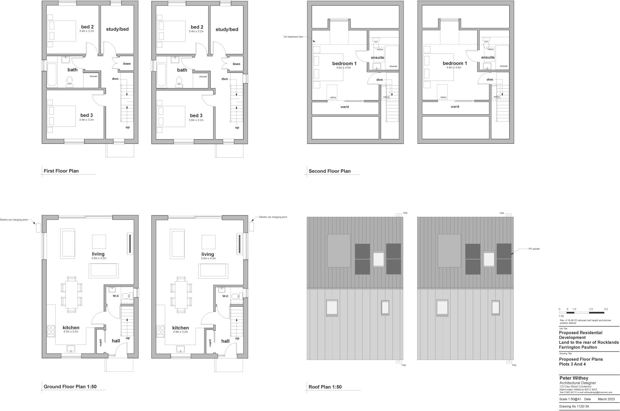
An approved residential development site extending to 0.67 acres with full planning consent for six detached three-storey homes (3–4 bedrooms each). The consent (BANES 23/01721/RES) was granted on 04/11/2024 and envisages private gardens and dedicated parking for each house, making this a ready-made opportunity for a small high-quality scheme close to Bristol and Bath.
The plot sits to the rear of Rocklands on a slight gradient and includes remnants of a building, a front garage and a mound of stone. The purchaser will be responsible for clearing existing structures, undertaking groundworks to level the site and providing any required service connections — all factors to budget for alongside the confirmed Community Infrastructure Levy payment of £118,000. Access is via a shared driveway and rights of way over the entrance will be reserved.
Paulton is a large, well-served village north of the Mendip Hills with strong local amenities, good primary and secondary schools, and easy road links to Bath, Bristol and Wells. Mains services are understood to be available nearby but buyers must verify location and capacity. The site is freehold, not in a conservation area, and is within the local housing development boundary.
Commercial development for sale in Oxleaze Way, Paulton, Bristol, Somerset, BS39 7AN, BS39 — £500,000 • 1 bed • 1 bath
4 bedroom detached house for sale in Littlebrook, Paulton, Bristol, BS39 — £525,000 • 4 bed • 1 bath • 1392 ft²
Land for sale in Writhlington, Near Radstock, BA11 — £500,000 • 1 bed • 1 bath • 27007 ft²
4 bedroom detached house for sale in Midford, Bath, BA2 — £600,000 • 4 bed • 1 bath • 1244 ft²
Plot for sale in Frome Road, Bath, BA2 — £165,000 • 1 bed • 1 bath
3 bedroom link detached house for sale in Bindery Walk, Paulton, Bristol, BS39 — £349,950 • 3 bed • 2 bath • 1022 ft²


















































