Perfect starter house for growing families seeking low-maintenance living.
- New-build three-storey semi-detached house, freehold
- Open-plan kitchen/dining with direct outside access
- Top-floor principal bedroom with en suite shower
- One family bathroom plus downstairs WC; limited facilities
- Energy-efficient construction and move-in ready condition
- Allocated off-street parking and large plot with garden
- Compact overall size (656 sq ft); smaller room proportions
- Three built-in storage cupboards for practical storage
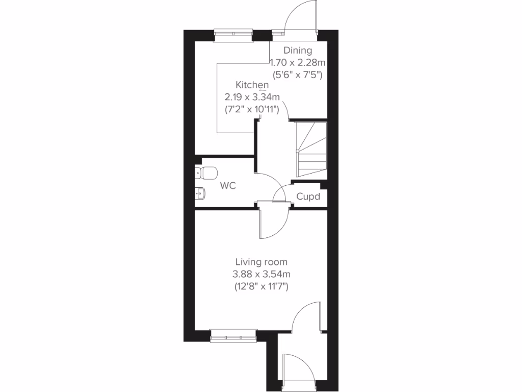
This modern three-storey Saunton offers compact, efficient living across 656 sq ft on a large plot in a quiet suburban development. The open-plan kitchen/dining room with outside access and a front-aspect living room create flexible family living zones, while an enclosed porch and downstairs WC add everyday practicality.
The top-floor principal bedroom benefits from an en suite shower, and two further bedrooms sit on the first floor alongside a well-equipped family bathroom. Three handy storage cupboards and allocated off-street parking make day-to-day life easier for commuters and parents.
As a new-build freehold, the house is energy efficient and move-in ready, appealing to first-time buyers or young families seeking low-maintenance contemporary accommodation. Note the overall internal size is small (656 sq ft) and room dimensions are compact, so buyers needing generous living space should check layouts carefully. There is one main family bathroom plus the en suite, which may feel limited for larger households.
3 bedroom semi-detached house for sale in Horse Road,
Hilperton,
Trowbridge,
BA14 7PB, BA14 — £324,995 • 3 bed • 1 bath • 325 ft²
3 bedroom semi-detached house for sale in Horse Road,
Hilperton,
Trowbridge,
BA14 7PB, BA14 — £324,995 • 3 bed • 1 bath • 325 ft²
2 bedroom semi-detached house for sale in Horse Road,
Hilperton,
Trowbridge,
BA14 7PB, BA14 — £289,995 • 2 bed • 1 bath • 490 ft²
4 bedroom detached house for sale in Horse Road,
Hilperton,
Trowbridge,
BA14 7PB, BA14 — £459,995 • 4 bed • 1 bath • 458 ft²
3 bedroom detached house for sale in Horse Road,
Hilperton,
Trowbridge,
BA14 7PB, BA14 — £389,995 • 3 bed • 1 bath • 609 ft²
2 bedroom semi-detached house for sale in Horse Road,
Hilperton,
Trowbridge,
BA14 7PB, BA14 — £289,995 • 2 bed • 1 bath • 490 ft²














































