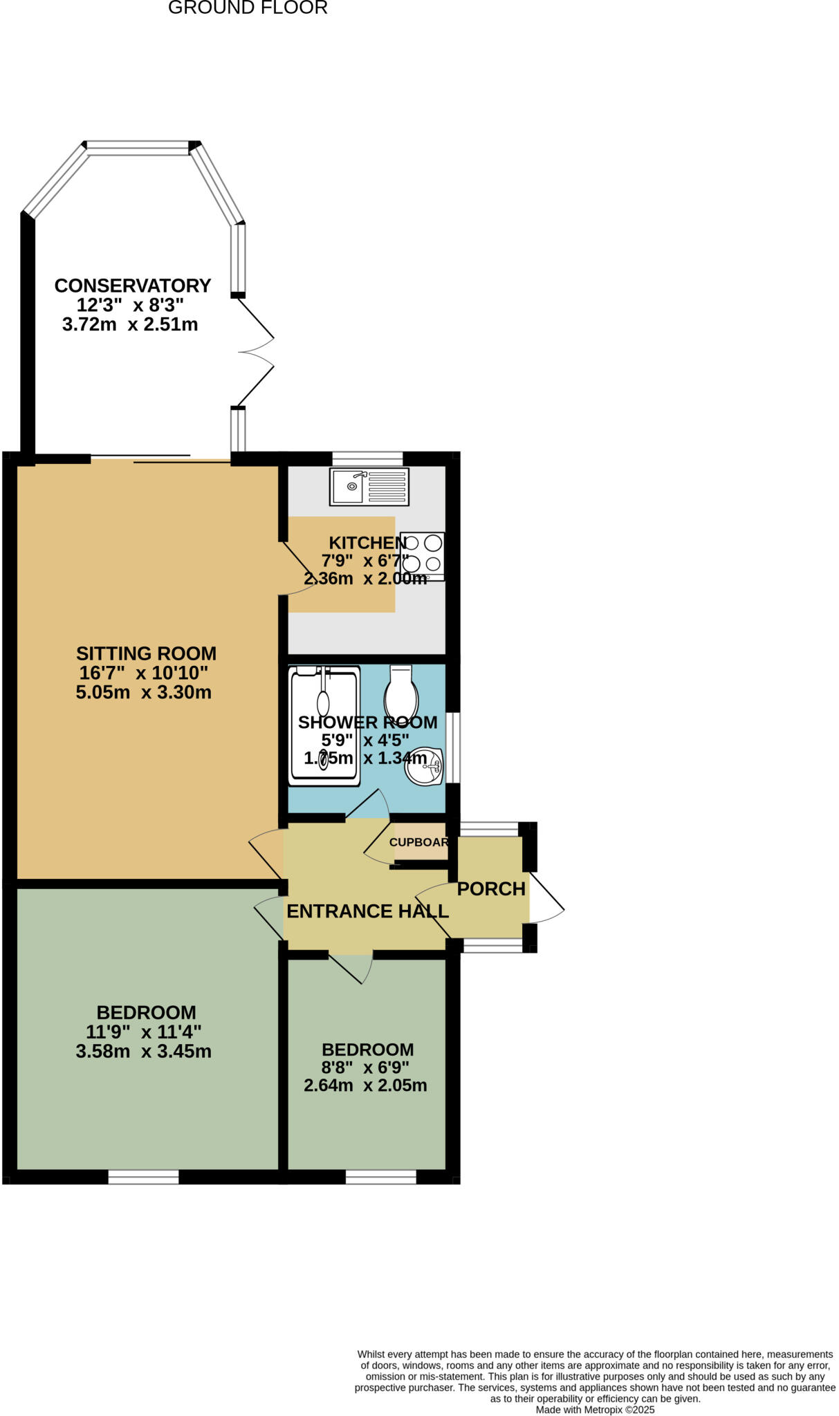
Chain free two-bedroom bungalow, single-storey low-maintenance living
Conservatory overlooking private rear garden, sheltered and secluded
Garage with electric remote door plus driveway parking for two cars
Gas central heating and UPVC double glazing throughout
Compact overall size (547 sq ft) — best for downsizers or single occupants
1970s styling and basic finishes; cosmetic updating likely needed
EPC rating D — not as energy efficient as newer homes
Single shower room only, no separate bath
A compact two-bedroom semi-detached bungalow offering single-storey, low-maintenance living in the heart of Halesworth. At 547 sq ft this property suits buyers seeking an easy-care home close to local shops, services and the train station. The sitting room opens into a conservatory that overlooks a private, sheltered rear garden — ideal for quiet outdoor time without heavy upkeep.
Practical features include gas central heating, UPVC double glazing and a well-fitted kitchen with integrated appliances. Off-street parking for two leads to a single garage with an electric remote-controlled door, providing secure storage and easy vehicle access. The bungalow is offered chain free, making it straightforward for a quick move or downsizing plan.
Buyers should note the compact overall size and 1970s décor; the home will benefit from cosmetic modernisation to suit contemporary tastes. The EPC rating of D and single shower room are practical but limit energy performance and flexibility for larger households. For anyone seeking a manageable, ground-floor property with scope to update, this bungalow presents clear value in a quiet town-fringe setting.























































