Period charm, landscaped garden and large workshop in sought-after village location.
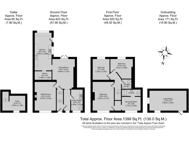
Three bedrooms, master with dressing room and en-suite
A characterful three-bedroom cottage tucked on a quiet lane in sought-after Kings Sutton. The house blends original period features — exposed beams, a stone façade and a cosy sitting room with a wood-burning stove — with practical family spaces including a generous dining room, kitchen/breakfast with pantry, and a utility/cloakroom. The master bedroom benefits from a dressing room and en-suite, making it a comfortable main suite.
Outside, the property’s beautifully landscaped multi-level garden and substantial workshop (approx. 171 sq ft) are major draws for gardeners, hobbyists and anyone needing storage or a home studio. With a cellar and a total floorspace of about 1,399 sq ft there’s useful, flexible space for family living or home working. Broadband is fast and mobile signal is excellent, supporting remote working and streaming.
The cottage is freehold and in a very affluent, well-served village with good local primary and secondary schools nearby. Practical running aspects are straightforward: mains gas central heating, double glazing (install date unknown) and affordable council tax. Flood risk is low.
Buyers should note this is a pre-1900 solid-brick property: while full of character, the walls are likely uninsulated and may benefit from sympathetic upgrades to improve thermal performance. Some general maintenance and modernisation may be required to meet contemporary energy or accessibility expectations. Overall, the house offers a rare mix of village character, garden space and practical outbuilding potential for families or downsizers seeking a comfortable rural base.
3 bedroom end of terrace house for sale in Richmond Street, Kings Sutton, Oxfordshire, OX17 — £550,000 • 3 bed • 1 bath • 1366 ft²
3 bedroom cottage for sale in Richmond Street, Kings Sutton, OX17 — £450,000 • 3 bed • 1 bath • 1251 ft²
3 bedroom terraced house for sale in Whittall Street, Kings Sutton, OX17 — £425,000 • 3 bed • 2 bath • 1315 ft²
4 bedroom semi-detached house for sale in Whittall Street, Banbury, OX17 — £850,000 • 4 bed • 2 bath • 1794 ft²
3 bedroom semi-detached house for sale in Whittall Street, Kings Sutton, Banbury, OX17 — £390,000 • 3 bed • 2 bath • 1290 ft²
2 bedroom semi-detached house for sale in Astrop Road, Kings Sutton, OX17 — £425,000 • 2 bed • 1 bath • 1126 ft²


















































































































































































