**Standout Features:**
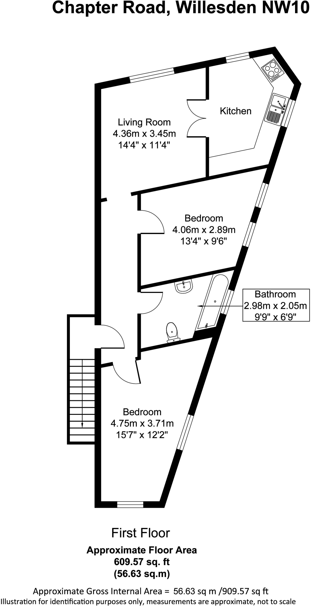
- 2-bedroom first-floor maisonette
- Recently refurbished with a modern touch
- Spacious and bright throughout
- Fully fitted kitchen and 3-piece bathroom
- Chain-free sale for quick occupancy
- Close to Dollis Hill Station and local amenities
**Potential Concerns:**
- Small overall size (609 sq ft)
- Average broadband speed
- Above-average crime rates in the area
Introducing a beautifully refurbished 2-bedroom first-floor maisonette, perfect for first-time buyers or investors seeking a comfortable urban retreat. This charming home boasts a bright and spacious layout, featuring a generous reception room, contemporary fitted kitchen, and a stylish 3-piece bathroom. Located on the tranquil Chapter Road, just moments from vibrant Willesden High Road, you'll enjoy easy access to essential amenities and the Dollis Hill Station, making your commute a breeze.
With the property being chain-free, you could move in without delay and start enjoying the vibrant community. The area is well-served by excellent local schools, making it an attractive option for young families. While the flat is compact, it provides a cozy atmosphere without compromising on modern comforts. Be sure to seize this opportunity—viewings are highly recommended as homes like this don't stay on the market for long!
1 bedroom apartment for sale in Chapter Road, London, NW2 — £335,000 • 1 bed • 1 bath • 463 ft²
3 bedroom house for sale in Chapter Road, Cricklewood, NW2 — £775,000 • 3 bed • 2 bath • 1179 ft²
2 bedroom flat for sale in Windsor Road, Willesden, NW2 — £424,950 • 2 bed • 1 bath • 539 ft²
1 bedroom flat for sale in Chapter Road, Cricklewood, NW2 — £360,000 • 1 bed • 1 bath • 498 ft²
1 bedroom ground floor flat for sale in Chapter Road, London, NW2 — £360,000 • 1 bed • 1 bath • 501 ft²
3 bedroom maisonette for sale in Deacon Road, Willesden, NW2 — £400,000 • 3 bed • 1 bath • 767 ft²


































