Quiet village location near schools and commuter links for thoughtful renovators.
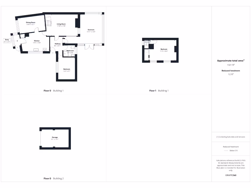
Detached period cottage with three reception rooms and conservatory
Large kitchen/breakfast room with scope to redesign
Two double bedrooms; one bedroom on the ground floor
Garage, driveway parking and large wraparound gardens
Requires renovation; EPC rating F and very slow broadband
Electric storage heaters; stone walls assumed uninsulated
Glazing type not defined; potential for energy efficiency work
Sought-after village location with good primary school and pub
This detached period cottage on a quiet no-through lane offers generous living space and substantial scope for renovation. The flexible layout includes three reception rooms, a large kitchen/breakfast room and a conservatory that opens onto mature gardens — ideal for someone wanting to reconfigure and modernise to their own taste. A useful ground-floor double bedroom and an updated shower room add practical day-to-day convenience.
The property requires modernisation throughout: heating is by electric storage heaters, the stone walls are assumed uninsulated, glazing type is not defined and the EPC is F. Broadband speeds are very slow. These are important considerations for buyers seeking an energy-efficient home and may require investment to improve comfort and running costs.
Outside, the plot is large with driveway parking and a garage, plus a greenhouse and a covered fishpond providing scope for landscaping or wildlife features. The cottage sits in a sought-after village with an award-winning pub and a good primary school, and has straightforward road access to Banbury, Towcester, Brackley and nearby mainline stations — useful for commuting or weekend travel.
This is a clear renovation opportunity for buyers who want period character and space in a peaceful rural setting. It will suit someone prepared to invest in insulation, heating and modernisation to unlock the property’s long-term potential.
4 bedroom barn conversion for sale in High Street, Weston, NN12 — £525,000 • 4 bed • 2 bath • 1442 ft²
2 bedroom detached house for sale in High Street, Whittlebury, Northamptonshire, NN12 — £260,000 • 2 bed • 1 bath • 1142 ft²
3 bedroom detached house for sale in West Farndon, South Northamptonshire, NN11 — £639,000 • 3 bed • 1 bath • 1363 ft²
4 bedroom detached house for sale in High Street, Greens Norton, NN12 — £725,000 • 4 bed • 1 bath • 2135 ft²
3 bedroom detached house for sale in Banbury Lane, Byfield, NN11 — £465,000 • 3 bed • 2 bath • 1948 ft²
3 bedroom detached house for sale in High Street, Blisworth, Northamptonshire, NN7 — £375,000 • 3 bed • 1 bath • 1149 ft²














































































































































