CA10 1JY - 3 bedroom detached house for sale in The Granary, Scalehous…

View on Property Piper

3 bedroom detached house for sale in The Granary, Scalehouses, Renwick, Penrith, Cumbria, CA10

Summary - The Granary Scalehouses, Renwick CA10 1JY

3 bed 2 bath Detached

**Standout Features:**
- Well-presented detached barn conversion
- Landscaped gardens with bothy/home office
- Additional banked barn with development potential
- Flexible accommodation across three floors
- 3 spacious bedrooms and 2 bathrooms
- Quiet rural setting in the upper Eden Valley
- Excellent broadband and mobile signal

**Concise Summary:**
Introducing The Granary, a beautifully converted stone barn that combines rustic charm with modern living in a peaceful hamlet. This spacious three-bedroom home features an inviting sitting room, a well-appointed kitchen, and a galleried lounge that enhances the property's unique layout. A standout aspect is the detached bothy, equipped with power and a wood-burning stove, perfect for a hobby room or home office, alongside an additional barn ripe for development potential.

Surrounded by landscaped gardens, this property offers ample outdoor space to enjoy picturesque rural views, perfect for families or those seeking tranquility in nature. With excellent broadband connectivity and low crime rates, The Granary is well-situated for modern conveniences while offering a true countryside escape. Don’t miss this rare opportunity to secure a flexible family home that appeals to both lifestyle seekers and investors—schedule a viewing today!

Property Details

Brochure Descriptions

Image Descriptions

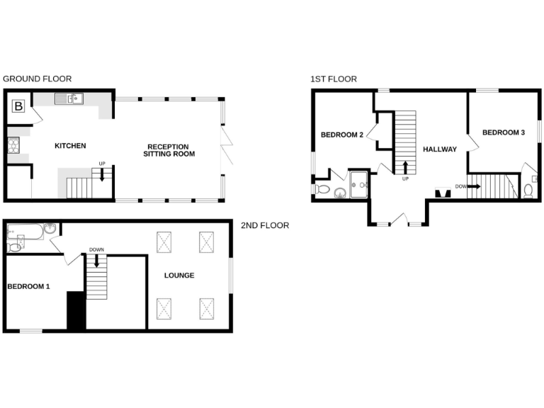
Floorplan Description

Rooms

Textual Property Features

Detected Visual Features

EPC Details

Nearby Schools

Nearest Bars And Restaurants

,,,,}

Nearest General Shops

,,}

Nearest Grocery shops

,,}

Nearest Supermarkets

,,}

Nearest Religious buildings

,,}

Nearest Medical buildings

,,,}

Nearest Leisure Facilities

,,,,}

Nearest Tourist attractions

,,}

Nearest Train stations

,,,,}

Nearest Bus stations and stops

,,,,}

Nearest Hotels

,,}

Tags

Local Market Stats

Similar Properties

Meta

High Res Images

Compatible Images

Low res Images

Thumbnails

Raw Images

High Res Floorplan Images

Compatible Floorplan Images

Low res Floorplan Images

FloorplanImages Thumbnail

Raw Floorplan Images