Renovated 1890s station house with countryside views, modern eco‑systems and large gardens.
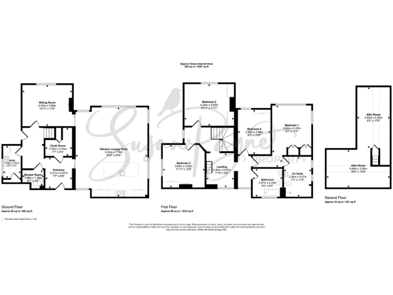
- Four double bedrooms and three well-appointed washrooms
- Extended open-plan kitchen-living area with underfloor heating
- Air-source heat pump, solar panels and EV charging point
- Large wraparound garden and original station platform patio
- Driveway with electronic gates and substantial detached garage
- Attic room boarded; potential for extra bedroom (subject to consents)
- Broadband speeds are slow locally — may affect working from home
- Cavity walls assumed uninsulated; further energy upgrades possible
Station House is a spacious, characterful former station house sympathetically refurbished to combine period charm with contemporary living. The extended open-plan kitchen-living space (2021) floods with light, frames sweeping farmland views and benefits from underfloor heating and a wood-burning stove — ideal for family life and entertaining. Practical modern upgrades include an air-source heat pump, solar panels and EV charging at the garage, reducing running costs and supporting low‑carbon living.
Set on a large, wraparound plot, the gardens and original station platform patio provide elevated countryside vistas and private outdoor space. Off-street parking for several cars, an electronic gated entrance and a sizable garage (with power and up-and-over door) add useful flexibility for vehicles, hobbies or a home gym/workshop. The attic room is boarded and offers potential for a further bedroom or storage (subject to consents).
This village-edge location suits families and those seeking rural life with amenities close by: a highly regarded primary school, local shops, pubs and bus links to Newport, Shanklin and Ventnor. Countryside walks are immediate from the doorstep, while the county town is about 15 minutes’ drive for broader services.
Buyers should note practical details: broadband speeds are reported slow in the area, and the property’s cavity walls are assumed uninsulated which may affect future energy improvements. The house was constructed in the late 19th century and—despite careful renovation—retains historic fabric that may require different maintenance than a modern build. Overall, Station House offers a large, well-updated family home with strong period character and clear potential for owners to adapt spaces further.
7 bedroom detached house for sale in St. Helens, PO33 — £995,000 • 7 bed • 5 bath • 4450 ft²
7 bedroom detached house for sale in St. Helens, Isle of Wight, PO33 — £995,000 • 7 bed • 6 bath • 4596 ft²
4 bedroom detached house for sale in Bowcombe Road, Newport, PO30 — £750,000 • 4 bed • 1 bath • 2831 ft²
4 bedroom detached house for sale in Church Road, Havenstreet, Ryde, PO33 — £450,000 • 4 bed • 2 bath • 1761 ft²
4 bedroom detached house for sale in Whitwell, Isle of Wight, PO38 — £550,000 • 4 bed • 2 bath • 1615 ft²
4 bedroom detached house for sale in Rural Outskirts of Wootton, PO33 — £799,995 • 4 bed • 2 bath • 1773 ft²






































































































































































































































