**Standout Features:**
- Freehold tenure with an EPC Rating of B
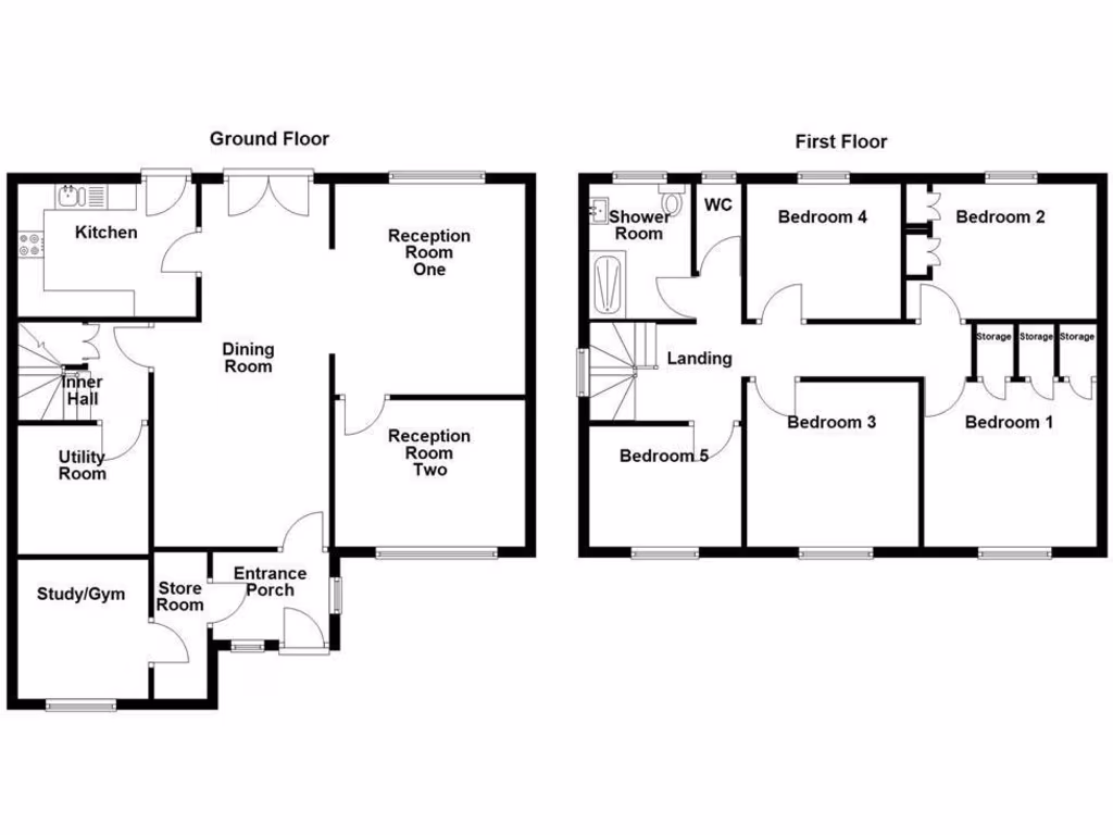
- Spacious 5-bedroom detached property
- Off-road parking with a double driveway for up to four cars
- Abundant indoor and outdoor space, including a wrap-around garden and garage conversion
- Ideal for families with easy access to local amenities and major transport links
- Environmental benefit with solar panels
**Potential Downsides:**
- Double glazing installation date unknown
- Cavity walls assumed to lack insulation
Discover a remarkable opportunity to own this exceptional detached family home situated in a highly sought-after area of Bury. Offering an impressive 1,592 square feet of living space, this well-maintained property boasts five generous bedrooms and versatile living areas, perfect for entertaining or family gatherings. The heart of the home features a contemporary kitchen and spacious open-plan dining room leading into two substantial reception rooms. With the added benefit of a study/gym space on the ground floor, this residence is tailored for comfort and functionality.
Enjoy the seamless connection between indoor and outdoor living with a beautifully landscaped wrap-around garden, ideal for family activities and relaxation. This property holds great potential for personalization, allowing you to infuse your unique style. Conveniently located near reputable schools and local amenities, with quick access to major transport links, it’s perfect for families seeking both comfort and accessibility. Don't miss the chance to experience all that this fantastic home has to offer—schedule a viewing today and envision your future in this delightful property!
4 bedroom link detached house for sale in Buckingham Drive, Bury, BL8 — £394,950 • 4 bed • 2 bath • 1195 ft²
4 bedroom semi-detached house for sale in Parr Lane, Bury, BL9 — £325,000 • 4 bed • 1 bath • 1485 ft²
4 bedroom detached house for sale in Mitton Close, Lowercroft, Bury, BL8 — £850,000 • 4 bed • 2 bath • 1210 ft²
5 bedroom detached house for sale in Cockey Moor Road, Bury, BL8 — £1,250,000 • 5 bed • 4 bath • 3595 ft²
4 bedroom detached house for sale in Trimingham Drive, Bury, BL8 — £425,000 • 4 bed • 1 bath • 1454 ft²
5 bedroom detached house for sale in Bolton Road, Bury, Greater Manchester, BL8 2DJ, BL8 — £575,000 • 5 bed • 3 bath • 1855 ft²














































































































































































































