Spacious open-plan living with low maintenance outdoor space.
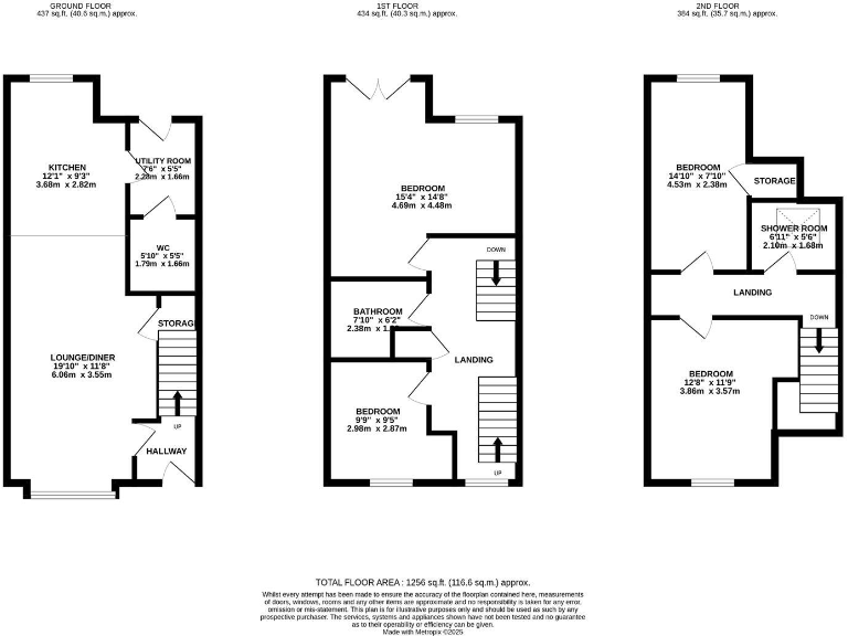
Four bedrooms and two bathrooms across three levels
This three-storey modern townhouse offers practical family living across 1,256 sq ft with four bedrooms and two bathrooms. The open-plan ground floor combines kitchen, dining and living space and includes a utility room and improved downstairs WC, creating a flexible hub for daily life and entertaining. The top floors provide a generous master bedroom with Juliet balcony plus two further doubles and a third adaptable room for guests, home office or children.
Outside, the property has a small, enclosed rear garden with paved patio and a modest front area, plus allocated off-street parking. The home is presented in a contemporary style with gas central heating, double glazing and an Energy Rating C — largely move-in ready for a buyer who wants low-maintenance living. Chain-free sale makes a quicker move possible.
Location is practical: close to several good primary schools, an outstanding technical secondary option, local amenities and transport links. Buyers should note the surrounding wider area is described as a transitional neighbourhood with constrained renters and above-average area deprivation metrics; this may influence long-term resale and rental demand. Tenure is not stated and should be confirmed before exchange.
Overall this property will suit growing families or investors seeking a modern, compact townhouse with straightforward maintenance and flexible space. It offers immediate usability and reasonable running costs, balanced against a small plot and local socio-economic factors that buyers should weigh when considering future value or lettability.
4 bedroom town house for sale in Teviot Close, Corby, NN17 — £220,000 • 4 bed • 1 bath • 976 ft²
4 bedroom terraced house for sale in Thurso Walk, Corby, NN17 — £230,000 • 4 bed • 1 bath • 847 ft²
2 bedroom terraced house for sale in Jura Close, Corby, NN17 — £174,950 • 2 bed • 1 bath • 604 ft²
4 bedroom terraced house for sale in Frith Close, Great Oakley, Corby, NN18 — £235,000 • 4 bed • 3 bath • 1400 ft²
4 bedroom semi-detached house for sale in Beech Close, Corby, NN17 — £229,950 • 4 bed • 1 bath • 917 ft²
3 bedroom semi-detached house for sale in Barra Walk, Corby, NN17 2GE, NN17 — £229,950 • 3 bed • 1 bath • 980 ft²










































































