BR3 4NE - 1 bedroom maisonette for sale in Blandford Road, Beckenham,…

View on Property Piper

1 bedroom maisonette for sale in Blandford Road, Beckenham, BR3

Summary - 53 LOWER FLAT BLANDFORD ROAD BECKENHAM BR3 4NE

1 bed 1 bath Maisonette

**Standout Features:**
- Recently redecorated ground floor maisonette
- One double bedroom with ample storage
- Spacious lounge and modern kitchen/breakfast area
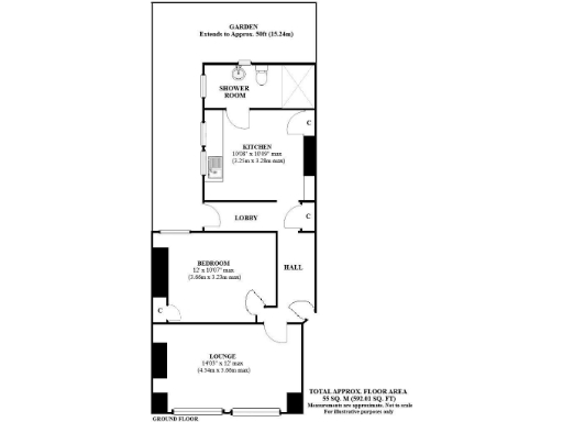
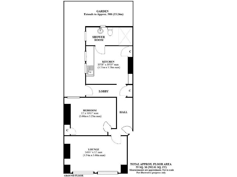
- Private rear garden approximately 50 feet
- Close to Clock House and Kent House train stations
- No onward chain
- Council Tax Band B: affordable yearly charge

Welcome to this charming one-bedroom ground floor maisonette, a perfect opportunity for first-time buyers or investors looking for a rental property. Newly renovated and in excellent condition, this home features a spacious lounge with a bay window and high ceilings, a modern kitchen/breakfast area with ample space for appliances, and a contemporary bathroom with a walk-in shower. The private rear garden provides a serene outdoor space, ideal for relaxation and entertaining.

Situated in a desirable area with very low crime rates, you'll enjoy proximity to essential amenities, including shops and excellent public transport links. The maisonette boasts double glazing and gas central heating for added comfort. With a reasonable ground rent and a longer lease term (118 years remaining), this property offers both security and flexibility for future modifications. Act quickly—this inviting residence won’t be on the market for long!

Property Details

Image Descriptions

Floorplan Description

Rooms

Textual Property Features

Detected Visual Features

EPC Details

Nearby Schools

Nearest Bars And Restaurants

,,,,}

Nearest General Shops

,,}

Nearest Grocery shops

,,}

Nearest Supermarkets

,,}

Nearest Religious buildings

,,}

Nearest Medical buildings

,,,}

Nearest Airports

,,}

Nearest Leisure Facilities

,,,,}

Nearest Tourist attractions

,,}

Nearest Train stations

,,,,}

Nearest Bus stations and stops

,,,,}

Nearest Hotels

,,}

Tags

Local Market Stats

AirBnB Data

Similar Properties

Meta

High Res Images

Compatible Images

Low res Images

Thumbnails

Raw Images

High Res Floorplan Images

Compatible Floorplan Images

Low res Floorplan Images

FloorplanImages Thumbnail

Raw Floorplan Images