Characterful family house with parking and gardens in a sought after conservation area.
Three double bedrooms, generous room proportions
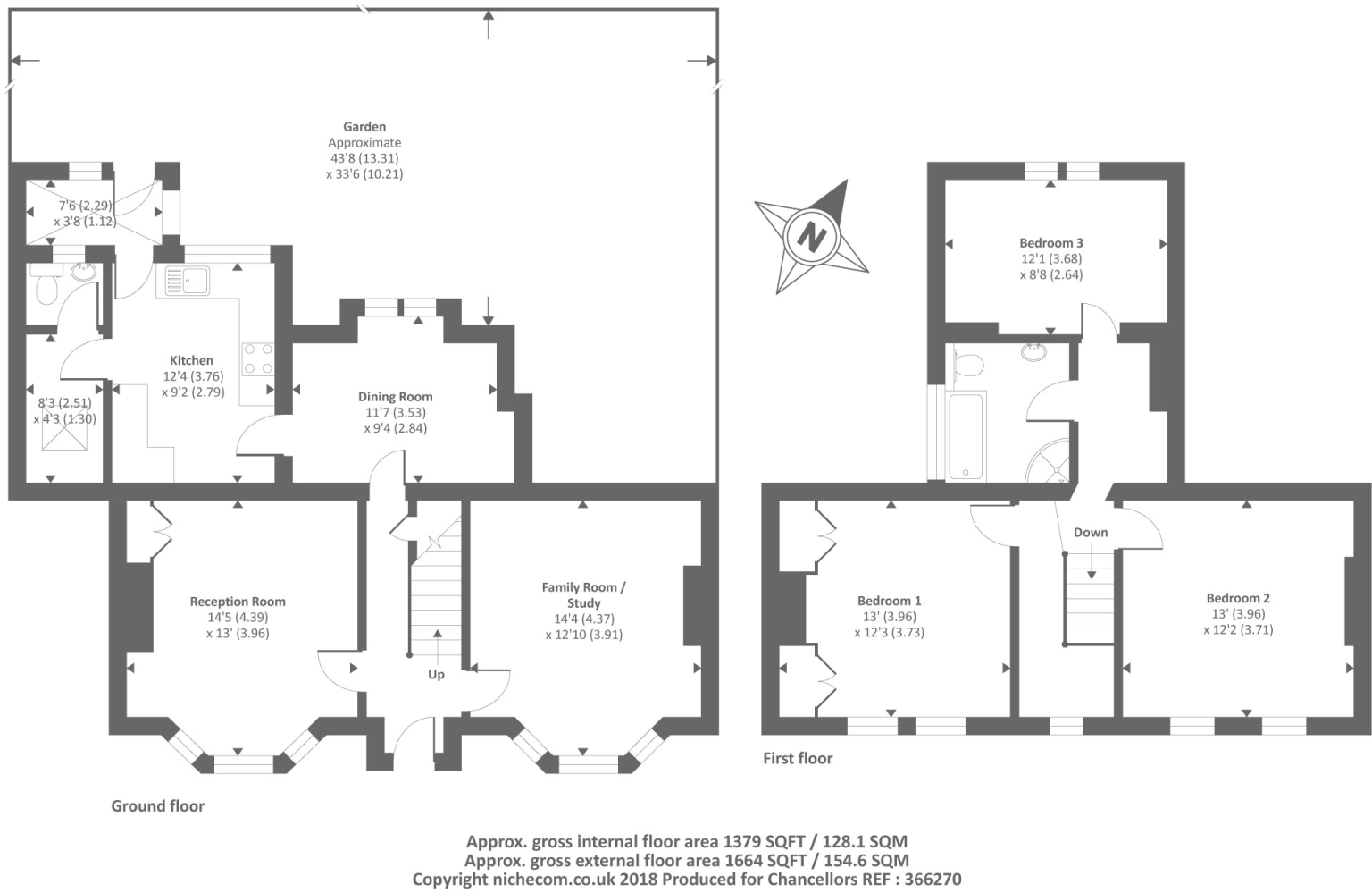
Set within Headington Quarry's Conservation Area, this double‑fronted terraced home blends generous living space with period character. The ground floor offers two bay‑fronted reception rooms plus a further rear reception, separate kitchen, utility and a cloakroom — ideal for family life and entertaining.
Upstairs are three double bedrooms and a large family bathroom with separate bath and shower. Outside there are good front and rear gardens and the practical benefit of off‑street parking to the rear. The property is offered freehold and extends to about 1,280 sq ft.
The house retains many original period features and benefits from mains gas heating and double glazing installed before 2002. It is a restoration project in places; the rear garden is currently overgrown and some updating will be needed to modernise finishes and services to current tastes.
Local amenities are strong: good primary and secondary schools nearby, frequent bus links and a range of community facilities and green spaces. With its balance of reception and bedroom space, conservation area setting and parking, the property suits families seeking character and space with scope to add value.
2 bedroom terraced house for sale in Headington Quarry, Oxford, OX3 — £425,000 • 2 bed • 2 bath • 856 ft²
3 bedroom terraced house for sale in Cooper Place, Headington, Oxford, OX3 — £550,000 • 3 bed • 1 bath • 1076 ft²
2 bedroom end of terrace house for sale in Headington Quarry, Oxford, OX3 — £350,000 • 2 bed • 1 bath • 723 ft²
4 bedroom detached house for sale in Old Road, Headington, OX3 — £750,000 • 4 bed • 2 bath • 2239 ft²
2 bedroom semi-detached house for sale in Quarry High Street, Headington, Oxford, OX3 — £500,000 • 2 bed • 1 bath • 1028 ft²
5 bedroom detached house for sale in Quarry Road, Headington, OX3 — £895,000 • 5 bed • 2 bath • 1783 ft²










































