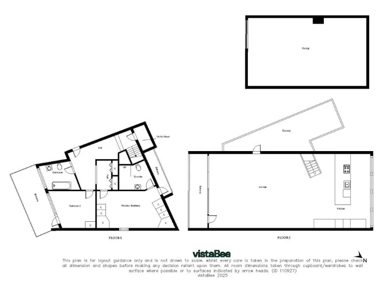
Approximately 1,600 sq ft duplex penthouse space
Dramatic 45ft upper living area with floor-to-ceiling windows
Four outdoor spaces including private roof terrace
Two bedrooms, two bathrooms; ensuite to principal bedroom
Tandem garage and residents’ parking permit eligibility
Outstanding south-facing park views and Merchant City outlook
Located in cosmopolitan student/commuter area — potential daytime activity
Tenure and council tax unknown — verify before purchase
A rare duplex penthouse offering approximately 1,600 sq ft of contemporary living in the heart of Glasgow, positioned to take full advantage of south-facing park views and Merchant City rooflines. The upper floor delivers a dramatic 45ft living-dining space with floor-to-ceiling glazing and four separate outdoor areas, including balconies and a private roof terrace — ideal for entertaining or quiet city living.
The two bedrooms and principal bathroom are situated on the entrance level for privacy and convenience, with a stylish ensuite to the master. Practical benefits include a tandem garage to the rear, eligibility for a residents’ parking permit, an attractive communal garden and excellent digital connectivity with fast broadband and strong mobile signal.
Buyers should note important local and title details: the wider area is classified as cosmopolitan student neighbourhoods and commuters and is recorded as very deprived; this may mean higher daytime activity and local service variability. Tenure and council tax band are not specified and should be confirmed prior to offer. While the apartment is described as presented to a high standard, prospective purchasers wanting absolute certainty on running costs and legal position should request full documentation.







































































































