Character-filled three-bedroom cottage moments from Steyning High Street, chain free.
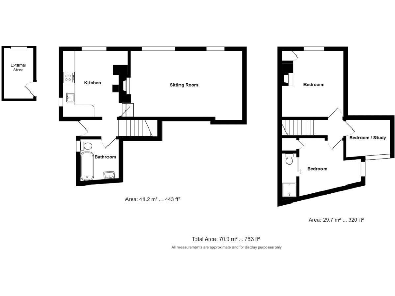
Large living room with 9ft ceiling and open fireplace
Dual-aspect kitchen-diner with wood burner and dining space
Three bedrooms, one with ensuite; small third bedroom/office
Chain free and well presented throughout; modern boiler installed
Small courtyard garden and external store; compact overall plot
EPC rating E; stone walls likely uninsulated — efficiency work needed
Bedrooms modest in size; limited scope for large extensions
Local recorded crime level is higher than average
This flint-fronted three-bedroom semi-detached cottage sits just off Steyning High Street, offering period charm and surprisingly generous reception space for its size. The large living room with high ceiling and open fireplace, plus a dual-aspect kitchen-diner with a wood burner, make it a warm, characterful home ready to occupy.
The house is presented in excellent decorative order and is chain free, with a modern gas boiler and double glazing installed post‑2002. The footprint is compact (approximately 763 ft²) with a small courtyard garden and an external store — ideal for commuters, downsizers or first-time buyers who value village location and character over extensive grounds.
Buyers should note practical limitations: the property has an EPC rating of E and stone walls likely lack insulation, so energy upgrades will be needed to improve efficiency. Bedrooms are modest in size and the plot is small, limiting extension options without conservation or planning checks. Local recorded crime levels are higher than average for the area.
Overall this is a well-kept period cottage that will suit someone seeking an immediately habitable, characterful home with scope for targeted energy improvements and modest modernisation rather than a large-family house.
3 bedroom terraced house for sale in St. Michael's Cottages, Tanyard Lane, Steyning, West Sussex, BN44 3RY, BN44 — £475,000 • 3 bed • 2 bath • 930 ft²
1 bedroom terraced house for sale in Charlton Street, Steyning, BN44 — £265,000 • 1 bed • 1 bath • 420 ft²
3 bedroom terraced house for sale in Steyning, BN44 — £475,000 • 3 bed • 1 bath • 1044 ft²
2 bedroom terraced house for sale in Mill Road, Steyning, West Sussex, BN44 3LN, BN44 — £450,000 • 2 bed • 1 bath • 947 ft²
2 bedroom cottage for sale in Sir Georges Place, Steyning, West Sussex,, BN44 — £300,000 • 2 bed • 1 bath • 546 ft²
3 bedroom cottage for sale in High Street, Steyning, BN44 — £700,000 • 3 bed • 1 bath • 1450 ft²










































































