Renovated family home with modern interiors and outdoor space.
3 bedrooms and 2 bathrooms in an extended, newly renovated Edwardian home
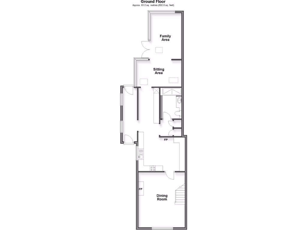
L-shaped modern kitchen and generous reception rooms for family life
Log burners in kitchen and dining room add character and warmth
Decent rear garden and hard-stand off-street parking at the front
Freehold tenure, mains gas central heating and double glazing present
Solid brick walls as built; no known wall insulation (energy upgrade needed)
Very slow broadband speeds in the area may affect home working
Built before 1900; buyers should verify extension consents and regulations
This well-presented three-bedroom end-of-terrace Edwardian home blends period character with a recently renovated, ultra-modern finish. Ground-floor extensions create generous, flexible living space — an open L-shaped kitchen, dining area with a log burner, and a separate sitting/family room — ideal for everyday family life and entertaining.
Outside, the property benefits from a decent rear garden and a hard-stand off-street parking space to the front. The plot feels private and manageable, and the house sits in a sought-after, comfortable neighbourhood close to good primary and secondary schools, local shops and amenities.
Practical points are straightforward: the house is freehold, gas-heated with a boiler and radiators, and fitted with double glazing. The home was constructed before 1900 and has solid brick walls with no known insulation; buyers should consider potential energy-efficiency improvements. Broadband speeds in the area are reported as very slow.
This property will suit families looking for ready-to-move-into accommodation with period charm and contemporary fittings, and buyers wanting further improvement potential (insulation, energy upgrades, and formal confirmation of extension consents). Flood risk is low and local crime levels are average.
4 bedroom terraced house for sale in Durrants Gardens, Rowland's Castle, PO9 — £485,000 • 4 bed • 3 bath • 904 ft²
3 bedroom semi-detached house for sale in Whichers Gate Road, Rowland's Castle, PO9 — £410,000 • 3 bed • 2 bath • 1220 ft²
3 bedroom semi-detached house for sale in Manor Lodge Road, Rowlands Castle, PO9 — £350,000 • 3 bed • 1 bath • 893 ft²
3 bedroom terraced house for sale in Redhill Road, Rowland's Castle, PO9 — £375,000 • 3 bed • 2 bath • 1023 ft²
3 bedroom semi-detached house for sale in Castle Road, Rowland's Castle, PO9 — £455,000 • 3 bed • 1 bath • 981 ft²
3 bedroom end of terrace house for sale in Castle Road, Rowland's Castle, PO9 — £450,000 • 3 bed • 1 bath • 1027 ft²






























































