Affordable two-bedroom home with new boiler and upgraded interiors for first-time buyers.
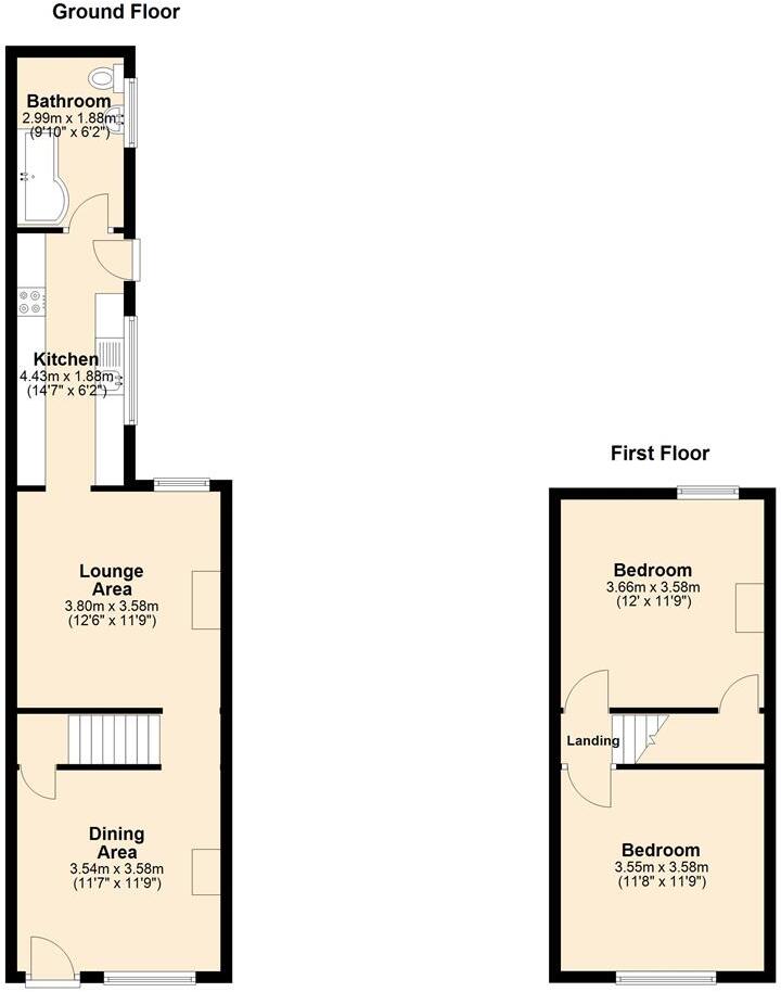
- Two bedrooms and two reception rooms, approx 710 sq ft
- Recently fitted kitchen, bathroom, new boiler and carpets
- Freehold and offered chain-free
- Small paved rear yard; low maintenance outside space
- EPC D (66); likely thermal upgrade potential
- Living room shows damp; remediation may be needed
- Area records high crime and very high deprivation
- Excellent commuter links to A50 and M6 junction 15
This two-bedroom mid-terrace offers sensible starter-home value or a rental opportunity close to major commuter routes. Recent works include a new combination gas boiler (with warranty), newly fitted carpets and upgraded kitchen and bathroom, reducing immediate expenditure for the next buyer. The property is offered freehold and chain-free, with fast broadband and excellent mobile signal for working-from-home convenience.
Internally the layout is straightforward: two reception rooms, a fitted kitchen, ground-floor bathroom and two first-floor bedrooms within approximately 710 sq ft. The house retains period character externally and double glazing was installed post-2002. A small paved rear yard provides low-maintenance outdoor space.
Buyers should note material drawbacks honestly: the area records high crime and very high deprivation which may affect resale and lettings. The living room has reported damp issues and the original solid-brick walls likely lack cavity insulation, so buyers should budget for any damp remediation and thermal upgrades. The EPC rating is D (66), so energy-improvement works could be worthwhile.
This house is best suited to first-time buyers seeking an affordable move-in-ready base with scope to add value, or investors wanting a straightforward let in a well-connected location. Verify schools and local conditions if these are priorities.
2 bedroom terraced house for sale in Keary Street, Stoke on Trent, Staffs, ST4 — £89,950 • 2 bed • 1 bath • 669 ft²
2 bedroom terraced house for sale in Chilton Street, Stoke-on-Trent, Staffordshire, ST4 — £86,000 • 2 bed • 1 bath
2 bedroom terraced house for sale in Leek Road, Stoke On Trent, ST1 — £110,000 • 2 bed • 1 bath • 700 ft²
2 bedroom terraced house for sale in Turner Street, Stoke-On-Trent, ST1 — £100,000 • 2 bed • 1 bath • 728 ft²
2 bedroom terraced house for sale in Robert Heath Street, Smallthorne, Stoke-on-Trent, Staffordshire, ST6 — £85,000 • 2 bed • 1 bath • 746 ft²
2 bedroom terraced house for sale in Campbell Road, Stoke-on-Trent, ST4 — £110,000 • 2 bed • 1 bath


































