Large garden, double garage and conservatory ideal for growing families.
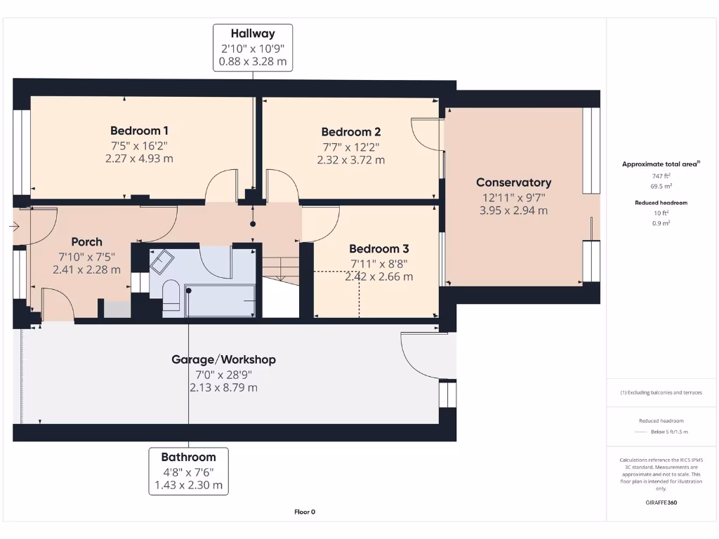
Attached double garage/workshop, 28ft long, with power and roller door
This well-presented three-bedroom semi-detached house sits at the end of a quiet residential close and is tailored to family life. The house benefits from a substantial attached double garage/workshop, off-street parking for several cars and a generous, well-stocked rear garden with patio seating — great for children and outdoor entertaining.
Inside, living spaces are balanced and practical: a large lounge with stripped wooden floor and feature fireplace, a modern fitted kitchen/diner with integrated appliances, and a conservatory that opens onto the garden to bring in extra light and usable space. The property has combi gas central heating, recent double glazing and a single well-appointed bathroom.
Practical points to note: broadband speeds in the area are slow, and the house has only one bathroom which may be limiting for larger families. The build dates from the late 1960s/early 1970s, so while well maintained, there may be opportunities to modernise or personalise areas to taste. Council tax is described as low/cheap and the location benefits from low local crime and excellent mobile signal.
Overall this freehold home suits a family seeking space, good outdoor amenities and strong parking/garage provision in a peaceful town setting. Its roomy garage/workshop and substantial garden provide clear potential for home-working, hobbies or extension subject to checks and consents.
2 bedroom semi-detached house for sale in Dorset Close, Buxton, SK17 — £239,995 • 2 bed • 1 bath
3 bedroom semi-detached house for sale in Berwick Road, Harpur Hill, Buxton, SK17 — £289,000 • 3 bed • 2 bath • 984 ft²
2 bedroom end of terrace house for sale in Sterndale Moor, SK17 — £245,000 • 2 bed • 2 bath • 1260 ft²
3 bedroom semi-detached house for sale in Berwick Road, Buxton, SK17 — £279,950 • 3 bed • 1 bath • 780 ft²
3 bedroom semi-detached house for sale in Tedder Avenue, Buxton, SK17 — £265,000 • 3 bed • 1 bath • 1193 ft²
3 bedroom semi-detached house for sale in Hastings Road, Buxton, Derbyshire, SK17 — £287,500 • 3 bed • 1 bath • 961 ft²


































































