High‑spec family home a short walk from Clifton Village and the Downs.
- Newly built 4-bedroom mews house in Clifton conservation area
- 1,794 sq ft over three storeys with 13 rooms total
- Open-plan kitchen/dining/family area with bi-fold doors to garden
- Principal bedroom with en-suite and built-in wardrobe
- High-spec finishes: Amtico parquet, porcelain tiles, integrated appliances
- EV car charging and pre-wired Sky connection
- Small private plot typical of a mews setting
- Service charge £225; only one bathroom listed—buyer to confirm
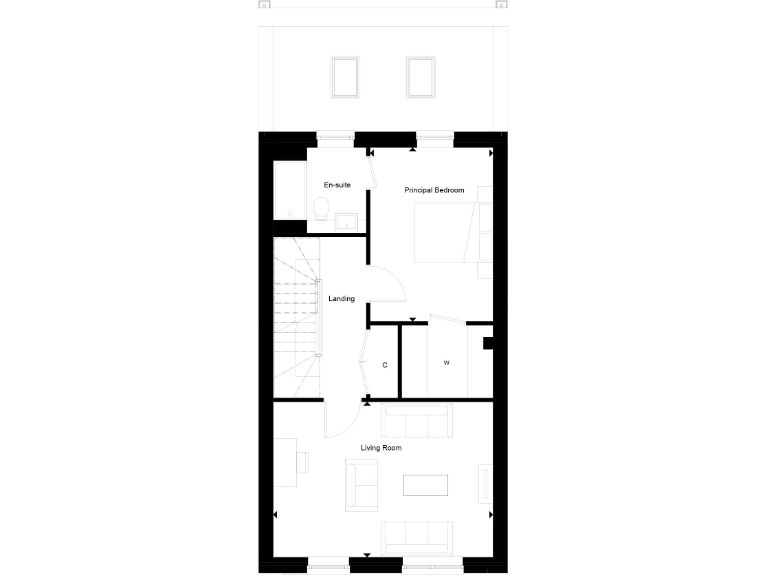
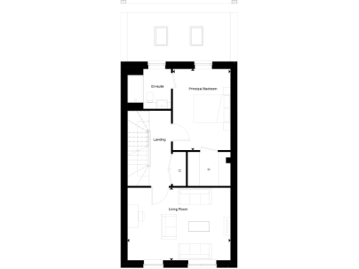
Set within Clifton’s historic conservation area, this seven-home scheme offers a newly built, three-storey mews house finished to a high specification. The house provides 1,794 sq ft of flexible family accommodation across 13 rooms, including four double bedrooms, a separate study and a generous open-plan kitchen/dining/family space with bi-fold doors to a south‑west facing garden.
Specification highlights include Amtico parquet flooring, matte black brassware, porcelain tiles, integrated appliances and EV car charging. The principal bedroom benefits from an en-suite and built-in wardrobe; the layout is tailored for modern family life with a ground-floor study and a comfortable first-floor living room.
Practical considerations: the plot is small, reflecting a mews setting, and a service charge of £225 is payable (below average). The dataset lists only one bathroom overall, which buyers should verify against the advertised en-suite and family bathroom. Freehold tenure, new‑build warranty and excellent local schools add long‑term appeal for families seeking Clifton convenience and quality finishes.
3 bedroom apartment for sale in Clifton,
Bristol,
BS8 3HX, BS8 — £925,000 • 3 bed • 1 bath • 861 ft²
2 bedroom apartment for sale in Clifton,
Bristol,
BS8 3HX, BS8 — £705,000 • 2 bed • 1 bath • 757 ft²
2 bedroom apartment for sale in Clifton,
Bristol,
BS8 3HX, BS8 — £720,000 • 2 bed • 1 bath • 824 ft²
2 bedroom apartment for sale in Clifton,
Bristol,
BS8 3HX, BS8 — £615,000 • 2 bed • 1 bath • 736 ft²
1 bedroom apartment for sale in Clifton,
Bristol,
BS8 3HX, BS8 — £399,995 • 1 bed • 1 bath • 421 ft²
2 bedroom apartment for sale in Clifton,
Bristol,
BS8 3HX, BS8 — £565,000 • 2 bed • 1 bath • 560 ft²






































