Spacious three-bedroom home with garden, summerhouse and parking.
Three double bedrooms across three floors
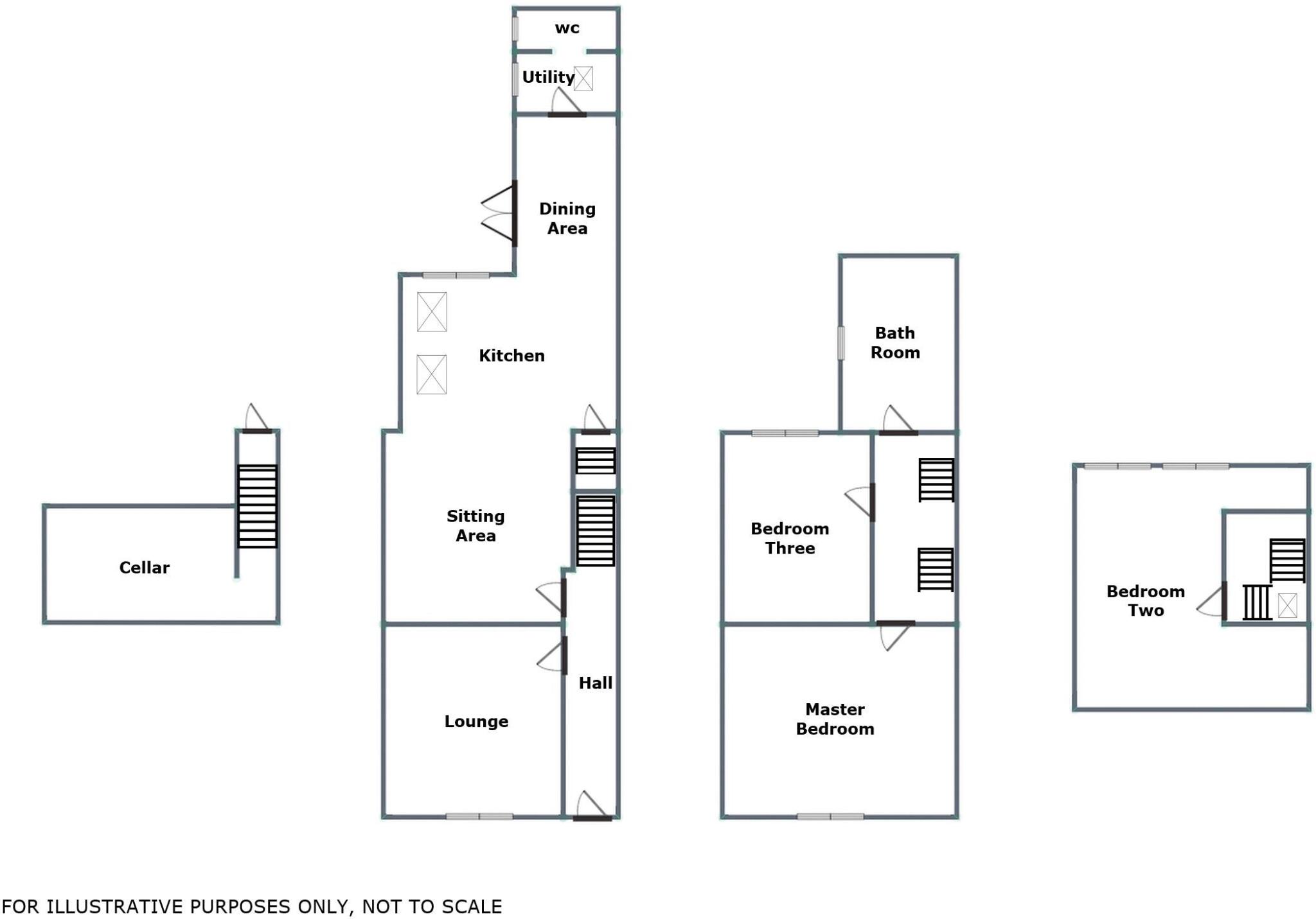
Converted cellar used as bar/entertaining space
Large rear garden with insulated summer house
Gated off-street parking at rear of garden
Original features: cast-iron fireplaces and exposed brickwork
Single family bathroom for three bedrooms
Small front garden typical of terrace plots
Recent boiler and UPVC double glazing installed
Set over three floors, this Victorian terrace blends original character with practical modern upgrades. Cast-iron fireplaces, exposed brickwork and engineered oak flooring provide period charm, while a recently fitted boiler, double glazing and a stylish kitchen deliver everyday comfort.
The ground floor is arranged for flexible living: a cosy front lounge, an open-plan kitchen/dining/sitting area with skylights and French doors to the garden, plus a useful utility and guest WC. A converted cellar provides a dedicated entertaining/bar space and adds versatility for home socialising or hobbies.
Upstairs are three double bedrooms and a family bathroom; the top-floor bedroom benefits from dormer and Velux windows for light. Outside the rear garden is well landscaped with lawn, multiple patios, a fully insulated summer house and gated off-street parking — a strong draw for families and those who like to entertain.
Notable practical points: the property is a mid-terrace with a modest foregarden and a single bathroom serving three bedrooms. While presented well, some buyers may wish to modernise parts to personal taste. Overall this is a spacious, characterful home suited to growing families or buyers seeking flexible entertaining space in a comfortable neighbourhood.
3 bedroom terraced house for sale in Leasowe Road, Brereton, Rugeley, WS15 — £179,000 • 3 bed • 1 bath • 862 ft²
3 bedroom detached house for sale in High Street, Burntwood, Chasetown, WS7 3XG, WS7 — £330,000 • 3 bed • 3 bath • 1120 ft²
3 bedroom detached bungalow for sale in Church Street, Chasetown, Burntwood, WS7 — £500,000 • 3 bed • 2 bath • 1927 ft²
3 bedroom semi-detached house for sale in Cannock Road, Chase Terrace, Burntwood, WS7 — £230,000 • 3 bed • 1 bath • 776 ft²
3 bedroom end of terrace house for sale in Beechtree Road, Walsall Wood WS9 9LW, WS9 — £280,000 • 3 bed • 1 bath
3 bedroom end of terrace house for sale in Ironstone Road, Burntwood, WS7 — £300,000 • 3 bed • 1 bath • 1658 ft²










































































































































































