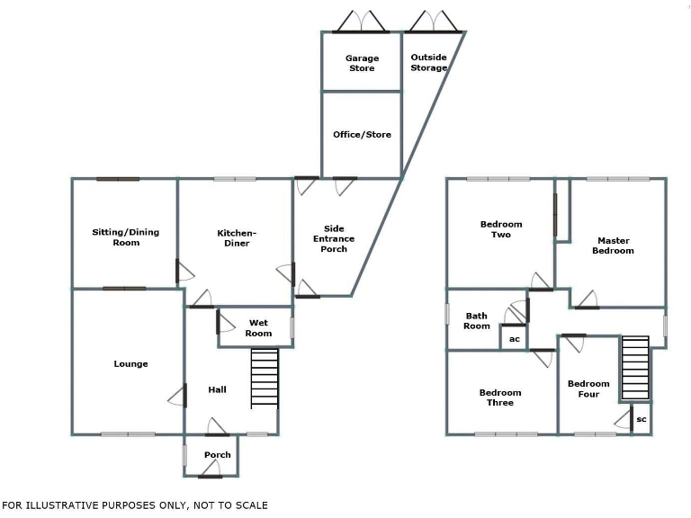
**Standout Features:**
- Deceptively spacious four-bedroom detached home
- Generous plot with well-maintained front and rear gardens
- Parking and garage to the rear
- Three double bedrooms plus one single bedroom
- Family-friendly layout with two bathrooms (family and wet room)
- Excellent access to schools, amenities, and commuting routes
- Low crime area with fast broadband speeds
**Concise Summary:**
Discover this deceptively spacious, four-bedroom detached family home nestled on a generous plot, perfect for families seeking comfort and convenience. With three double bedrooms and a good-sized single, this property accommodates all living needs. Enjoy the luxury of two bathrooms, including a modern family bathroom and a convenient ground floor wet room. The expansive front and rear gardens provide ample outdoor space for children and pets, while the secure gated driveway and garage enhance practicality.
The interior boasts a large lounge and a sitting/dining room, ideal for family gatherings, alongside a kitchen-diner ready for your personal touch. Well-maintained with double glazing and gas central heating, the property offers comfort and energy efficiency. Located just ten minutes from the natural beauty of Cannock Chase, residents benefit from proximity to good schools, local amenities, and major commuting routes.
Despite its many strengths, potential buyers should note that maintenance updates may be required to customize the space further. This family home is competitively priced at £310,000 and is waiting to be transformed into your ideal sanctuary. Don't miss out on this remarkable opportunity—schedule your viewing today!
4 bedroom detached house for sale in Avenue Road, Cannock, Staffordshire, WS12 — £425,000 • 4 bed • 2 bath
3 bedroom detached house for sale in Stafford Street, Heath Hayes, Cannock, WS12 — £295,000 • 3 bed • 1 bath • 1152 ft²
3 bedroom detached house for sale in Edgemoor Meadow, Heath Hayes, Cannock, WS12 — £310,000 • 3 bed • 1 bath • 862 ft²
5 bedroom detached house for sale in Canterbury Way, Cannock, Staffordshire, WS12 — £425,000 • 5 bed • 3 bath • 1419 ft²
4 bedroom detached house for sale in Kensington Place, Heath Hayes, Cannock, WS12 — £375,000 • 4 bed • 1 bath • 1380 ft²
4 bedroom detached house for sale in Canterbury Way, Heath Hayes, Cannock, WS12 — £400,000 • 4 bed • 2 bath • 1126 ft²










































































































































