**Standout Features:**
- Charming detached cottage with traditional and modern elements
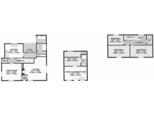
- Main house: 3 bedrooms; Annex: 1 bedroom
- Newly renovated with upgraded heating and modern kitchen & bathroom
- Spacious lounge, dining room, and breakfast/snug room
- Generous off-street parking and good-sized garden
- Located in a quaint market town with amenities within walking distance
**Notable Concerns:**
- Average-sized property, which might appeal to smaller families
- Double glazing installed before 2002 may require future upgrades
This delightful three-bedroom detached cottage, complemented by a self-contained one-bedroom annex, offers a perfect blend of charm and modernity. With its light-filled rooms and well-executed renovations, this home is ideally suited for families or as an investment opportunity, particularly for accommodating guests or extended family in the annex. The upgraded kitchen and bathroom exude contemporary elegance, while the cozy breakfast/snug room invites relaxation.
Nestled in the heart of Potton, the property enjoys a convenient location within walking distance of shops, social clubs, and eateries. Families will appreciate the quality local schools nearby, rated 'Good' by Ofsted. Although the property size is average, it provides ample room for personal touch and future potential, making it a highly attractive option in today’s competitive market. Don’t miss out on the chance to make this enchanting cottage your new home!
 4 bedroom detached house for sale in Everton Road, Potton, Sandy, SG19 — £500,000 • 4 bed • 2 bath • 1350 ft²
 4 bedroom detached house for sale in Everton Road, Potton, Sandy, SG19 — £500,000 • 4 bed • 2 bath • 1350 ft² 4 bedroom semi-detached house for sale in Everton Road, Potton, Sandy, SG19 — £489,995 • 4 bed • 1 bath • 1044 ft²
 4 bedroom semi-detached house for sale in Everton Road, Potton, Sandy, SG19 — £489,995 • 4 bed • 1 bath • 1044 ft² 5 bedroom house for sale in Horslow Street, Potton SG19 2NS, SG19 — £525,000 • 5 bed • 2 bath • 1959 ft²
 5 bedroom house for sale in Horslow Street, Potton SG19 2NS, SG19 — £525,000 • 5 bed • 2 bath • 1959 ft² 3 bedroom semi-detached house for sale in Byards Green, Potton, Sandy, SG19 — £365,000 • 3 bed • 2 bath • 1485 ft²
 3 bedroom semi-detached house for sale in Byards Green, Potton, Sandy, SG19 — £365,000 • 3 bed • 2 bath • 1485 ft² 2 bedroom end of terrace house for sale in King Street, Potton, Bedfordshire, SG19 — £255,000 • 2 bed • 1 bath • 636 ft²
 2 bedroom end of terrace house for sale in King Street, Potton, Bedfordshire, SG19 — £255,000 • 2 bed • 1 bath • 636 ft² 3 bedroom semi-detached house for sale in Catherines Close, Potton, SG19 — £425,000 • 3 bed • 2 bath • 1174 ft²
 3 bedroom semi-detached house for sale in Catherines Close, Potton, SG19 — £425,000 • 3 bed • 2 bath • 1174 ft²






























































