**Standout Features:**
- Prime riverside location with stunning 180-degree views of the River Tamar and Tamar Valley AONB
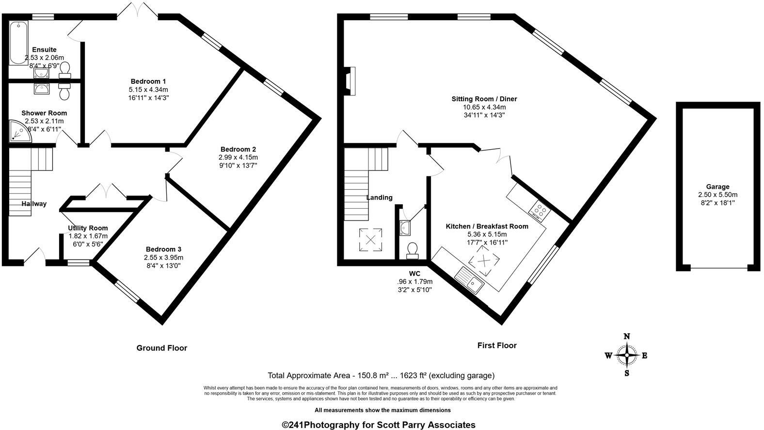
- Spacious 3-bedroom end-of-terrace layout, approximately 1623 sq ft
- Impressive 34' sitting/dining room with open fire and balcony-type Velux roof lights
- Garage and low-maintenance garden, ideal for outdoor enjoyment
- Fully double glazed with oil-fired central heating, ensuring comfort year-round
- Proximity to Cargreen Yacht Club, local schools, and recreational opportunities
**Downsides:**
- Limited mobile coverage indoors
- May require updates for modern standards
Nestled in the exclusive riverside community of Cargreen, this spacious 3-bedroom end-of-terrace house is a rare find, offering breathtaking views of the River Tamar and the picturesque Tamar Valley. With approximately 1623 sq ft of well-presented living space, this home is designed with a reversed layout to maximize its tranquil vistas. The inviting 34' sitting/dining room is perfect for entertaining, while the 15' kitchen/breakfast room provides a practical hub for family gatherings.
The property includes three generous double bedrooms, a luxurious ensuite, and a convenient shower room, making it ideal for both family living and potential holiday letting—a lucrative option the current owner has enjoyed. The low-maintenance garden and patio area ensure easy outdoor relaxation against the stunning backdrop of the river, allowing you to fully embrace the peaceful life of this charming village.
Cargreen offers a laid-back lifestyle with easy access to local amenities and recreational activities such as yachting and wild swimming, making this property suitable for both permanent residency and as a serene weekend retreat. Avoid missing out on this unique opportunity—this exceptional home in a stunning location is likely to attract considerable interest.
3 bedroom detached house for sale in Cargreen, Saltash, PL12 — £495,000 • 3 bed • 2 bath • 1488 ft²
4 bedroom detached house for sale in Cargreen, Saltash, PL12 — £450,000 • 4 bed • 2 bath • 1832 ft²
5 bedroom detached house for sale in Coombe Lane, Cargreen, Saltash, Cornwall, PL12 — £599,950 • 5 bed • 3 bath • 2537 ft²
4 bedroom detached house for sale in Antony Passage, Saltash, PL12 — £850,000 • 4 bed • 2 bath • 1997 ft²
3 bedroom detached house for sale in The Boathouse, Cargreen, Cornwall, PL12 — £600,000 • 3 bed • 3 bath • 1658 ft²
7 bedroom cottage for sale in March House & Cottage, Cargreen, Cornwall, PL12 — £850,000 • 7 bed • 3 bath • 3435 ft²














































































































