**Standout Features:**
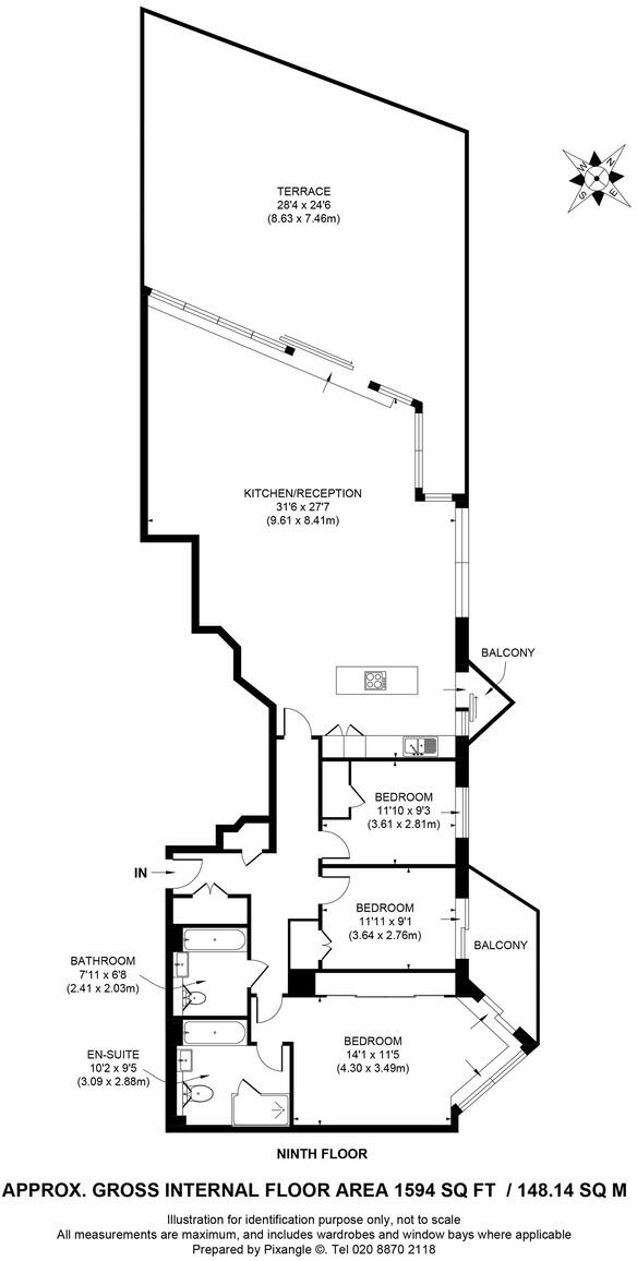
- Spacious 1,594 sq ft three-bedroom apartment
- Expansive private roof terrace with panoramic river views
- Part of the prestigious Battersea Reach development
- Modern open-plan living area with high ceilings and large windows
- Secure allocated parking and concierge service
- Excellent EPC rating of 'C'
- Great local amenities and very low crime rates
**Summary:**
Discover the perfect blend of comfort and urban sophistication in this stunning ninth-floor apartment, part of the award-winning Battersea Reach development along the scenic River Thames. Boasting three well-proportioned bedrooms with built-in wardrobes and two modern bathrooms, the open-plan reception area bathed in natural light seamlessly extends to a generous roof terrace—ideal for entertaining or simply relaxing while enjoying breathtaking views over London's skyline.
With a size of 1,594 sq ft, this luxurious flat is designed to elevate your lifestyle, while its secure allocated parking and concierge service add an extra layer of convenience. Located in a thriving cosmopolitan community, you’ll have access to top-rated schools, vibrant local amenities, and excellent transport links. Although the property is leasehold, the fee is a worthwhile investment for the location and features provided. Act quickly—this exclusive property offers outstanding living potential that won’t be on the market for long!
3 bedroom flat for sale in Juniper Drive, London, SW18 — £1,500,000 • 3 bed • 2 bath • 1593 ft²
3 bedroom flat for sale in Juniper Drive, London, SW18 — £1,650,000 • 3 bed • 2 bath • 1278 ft²
3 bedroom apartment for sale in Commodore House, Battersea Reach, Juniper Drive, London, SW18 — £1,500,000 • 3 bed • 2 bath • 1525 ft²
3 bedroom penthouse for sale in Baltimore House, Juniper Drive, London, SW18 — £1,650,000 • 3 bed • 2 bath • 1278 ft²
3 bedroom flat for sale in Ensign House,
Juniper Drive, SW18 — £1,750,000 • 3 bed • 2 bath • 1276 ft²
3 bedroom apartment for sale in Ascensis Tower, Battersea Reach, SW18 — £1,100,000 • 3 bed • 2 bath • 1219 ft²


































































