Period conversion with private outside area and excellent England's Lane amenities.
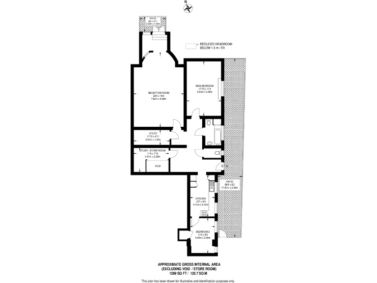
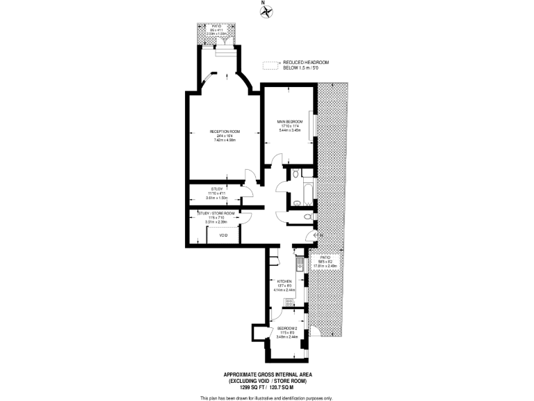
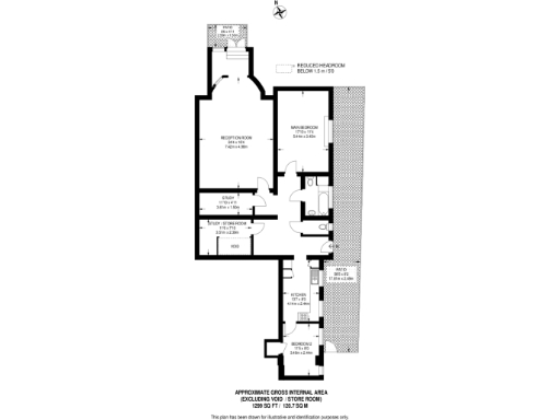
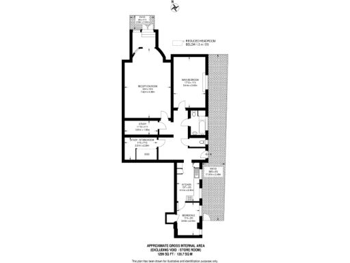
Large reception room with wood floors and high ceilings
Two good-sized double bedrooms and one bathroom
Contemporary galley kitchen with integrated appliances
Private outside space ideal for small table or planters
Separate storage room plus study/walk-in wardrobe
Very large overall size — c.1,299 sq ft of accommodation
Solid brick, pre-1900 construction; likely minimal wall insulation
Area crime recorded as above average; consider security measures
This ground-floor two-bedroom apartment occupies a substantial footprint within an imposing Victorian conversion in Belsize Park. A large reception room with wood floors and high ceilings gives genuine living space for dining and entertaining, while a contemporary galley kitchen provides modern fittings and integrated appliances. A private outside area extends the living space for plants or a small table and chairs.
Layout and storage are strong selling points: two good-sized double bedrooms, a dedicated study (or walk-in wardrobe), and a separate storage room are rare at this size. The property totals approximately 1,299 sq ft, offering flexibility for home-working, a growing family, or comfortable long-term living.
Buyers should note several practical considerations. The building is a pre-1900 solid-brick construction, which typically lacks cavity insulation; this may mean higher heating costs and potential upgrade works. There is a single bathroom and the property sits on the ground floor, which may suit some buyers more than others. Crime levels in the area are recorded as above average.
Positioned close to England’s Lane amenities and within easy reach of green spaces such as Primrose Hill, the flat suits purchasers seeking a well-sized, characterful home in a cosmopolitan North London neighbourhood. The tenure is share of freehold and the main heating is gas-fired boiler with radiators.
2 bedroom flat for sale in Ormonde Court, Belsize Park, London, NW3 — £1,200,000 • 2 bed • 2 bath • 1091 ft²
2 bedroom apartment for sale in Belsize Grove, London, NW3 — £835,000 • 2 bed • 1 bath • 710 ft²
2 bedroom flat for sale in Belsize Grove, Belsize Park, London, NW3 — £1,200,000 • 2 bed • 2 bath • 1353 ft²
2 bedroom apartment for sale in Belsize Park Gardens, London, NW3 — £1,850,000 • 2 bed • 2 bath • 1617 ft²
2 bedroom flat for sale in Buckland Crescent Belsize Park NW3 — £1,350,000 • 2 bed • 2 bath • 945 ft²
2 bedroom apartment for sale in Belsize Grove, London, NW3 — £825,000 • 2 bed • 1 bath • 675 ft²


















































































































