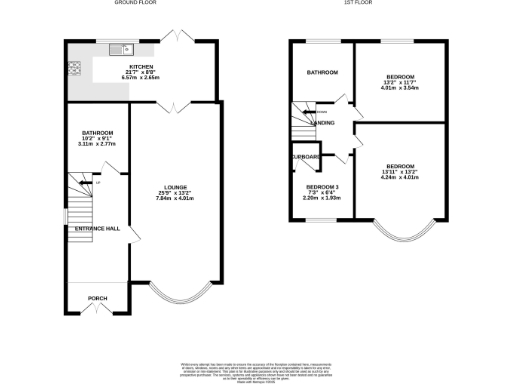
**Standout Features:**
- **Three spacious bedrooms** with ample natural light
- **Extended living area** with a large kitchen/dining space, perfect for family gatherings
- **Generous rear garden** complete with garage access
- **Off-street parking** for two cars
- **Excellent connectivity** to Heathrow Airport and nearby amenities, including Hayes & Harlington Station
- **Potential for loft conversion** (subject to planning permission) for added value
**Property Summary:**
Discover this charming 1930s mid-terraced home in the vibrant area of Hayes, ideal for families and investors alike. With 994 square feet of living space, the property features a light-filled through lounge, a full downstairs bathroom, and an extended kitchen/dining area that opens to a private rear garden—an entertainer's delight. Upstairs, you’ll find three generously sized bedrooms alongside a family bathroom, making it a comfortable haven for everyone.
Conveniently located near excellent schools and local amenities, this home also offers off-street parking for two vehicles and the potential for future enhancements, making it a savvy investment for those looking to capitalize on growth opportunities. While the property does require some cosmetic updating, its solid structure and desirable features allow for a unique touch tailored to your preferences. Don't miss your chance to explore this potential-packed property; early viewings are highly recommended to secure your dream home in a sought-after community!
3 bedroom terraced house for sale in Halsway, Hayes, Greater London, UB3 — £480,000 • 3 bed • 1 bath • 736 ft²
2 bedroom end of terrace house for sale in Repton Avenue, Hayes, Greater London, UB3 — £430,000 • 2 bed • 1 bath • 557 ft²
3 bedroom end of terrace house for sale in Marvell Avenue, Hayes, Greater London, UB4 — £650,000 • 3 bed • 1 bath • 960 ft²
3 bedroom terraced house for sale in Nield Road, Hayes, UB3 — £544,950 • 3 bed • 1 bath • 857 ft²
4 bedroom terraced house for sale in Coldharbour Lane, Hayes, UB3 — £590,000 • 4 bed • 2 bath • 595 ft²
3 bedroom terraced house for sale in Coronation Road, Hayes, UB3 4JU, UB3 — £475,000 • 3 bed • 1 bath • 743 ft²






















