SS17 9BW - 4 bed extended victorian family home in Fobbing Road, SS17…

View on Property Piper

4 bedroom semi-detached house for sale in Fobbing Road, Corringham, SS17

Summary - 71 FOBBING ROAD CORRINGHAM STANFORD-LE-HOPE SS17 9BW

4 bed 2 bath Semi-Detached

Immaculate four-bedroom family home with large kitchen–family room and double garage.
Extended Victorian semi-detached with period bay windows
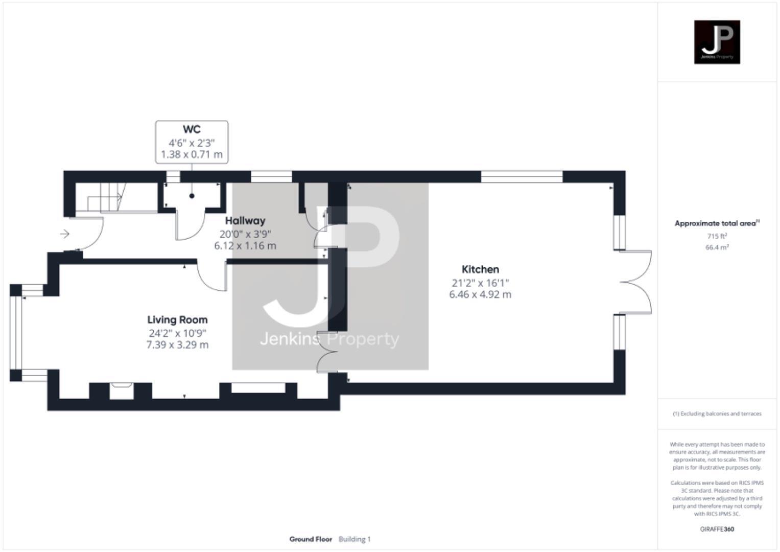
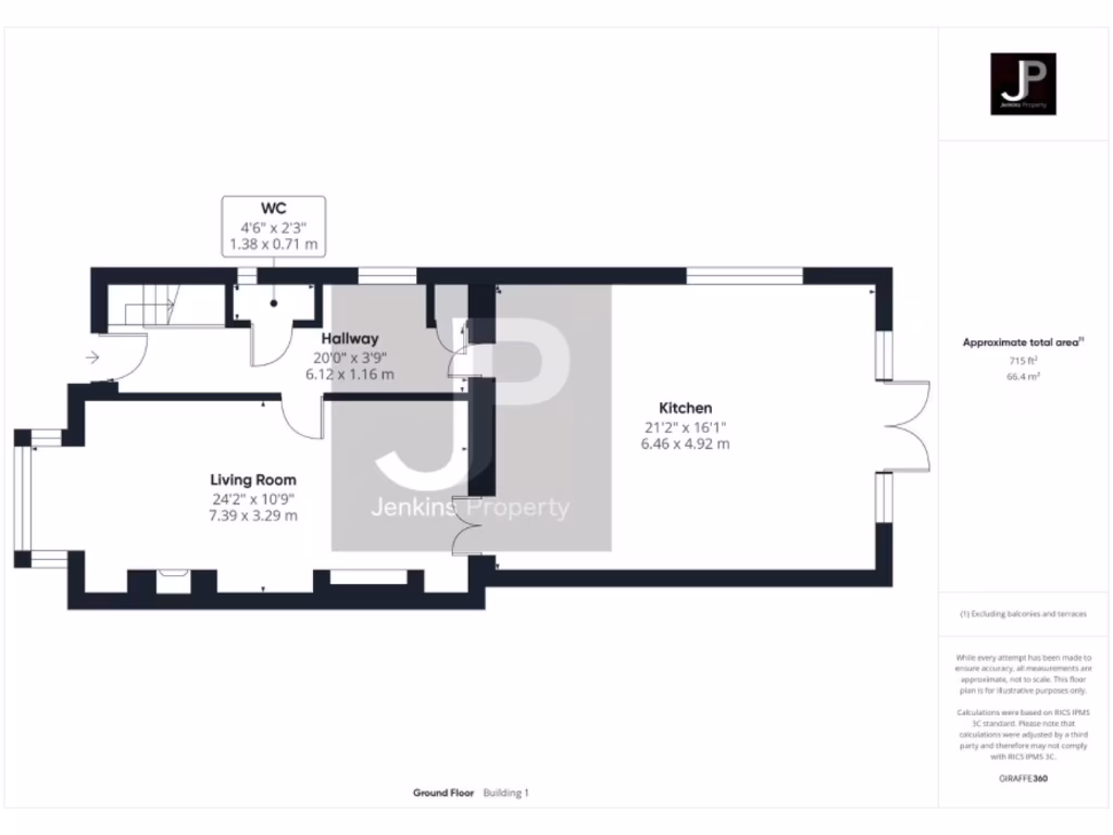
Set on an elevated plot in Corringham, this extended Victorian semi-detached home combines period character with generous family living spaces. The impressive kitchen–family room and two reception rooms create a flexible ground floor ideal for everyday life and entertaining. An attached double garage and separate games room/bar add useful leisure and storage space. The rear garden extends over 19m, offering room for children and outdoor dining.

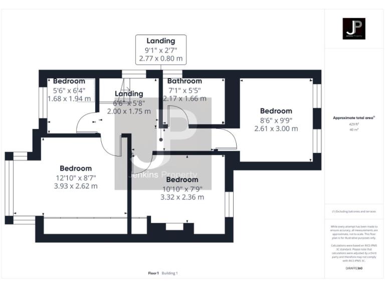
Accommodation includes four bedrooms and two bathrooms. Bedroom four is noticeably small and best suited to occasional use, a child's room, or study. Built in 1900 and immaculately presented, the house retains traditional bay windows and period features but, given its age, may require routine maintenance or modernisation in places over time. There is no flood risk and broadband and mobile signals are strong.

Local conveniences, primary schools rated Good, and comfortable suburban surroundings make this a practical family purchase. Note nearby secondary provision includes schools with mixed Ofsted outcomes; buyers with older children should check catchment details. The property is freehold and offered at £550,000 for an average-sized overall footprint of 1,564 sqft.

Property Details

Brochure Descriptions

Image Descriptions

Floorplan Description

Rooms

Textual Property Features

Target Audience

AI Tags

Detected Visual Features

Nearby Schools

Nearest Bars And Restaurants

,,,,}

Nearest General Shops

,,}

Nearest Grocery shops

,,}

Nearest Supermarkets

,,}

Nearest Religious buildings

,,}

Nearest Medical buildings

,,,}

Nearest Airports

,}

Nearest Leisure Facilities

,,,,}

Nearest Tourist attractions

,,}

Nearest Train stations

,,,,}

Nearest Bus stations and stops

,,,,}

Nearest Hotels

,,}

Tags

Local Market Stats

Similar Properties

Meta

High Res Images

Compatible Images

Low res Images

Thumbnails

Raw Images

High Res Floorplan Images

Compatible Floorplan Images

Low res Floorplan Images

FloorplanImages Thumbnail

Raw Floorplan Images