**Standout Features:**
- Spacious detached home set on nearly half an acre
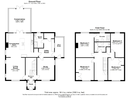
- Accommodation exceeding 2000 sq. ft. with versatile layout
- Large open-plan kitchen/dining/family room, plus three additional reception areas
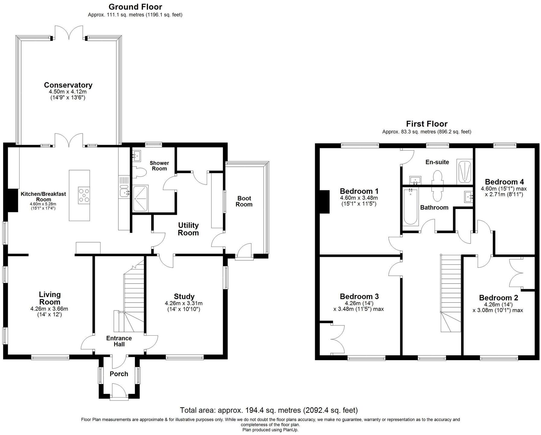
- Four generous double bedrooms, including en-suite to the master
- Expansive gardens with timber outbuilding and ample outdoor space
- Chain-free, off-street parking available
- Located in the vibrant rural community of Melbourn
Situated in the charming village of Melbourn, this updated detached home offers an exceptional blend of modern living and rural charm. With a substantial plot of nearly half an acre, this property boasts over 2000 sq. ft. of versatile accommodation, making it perfect for families looking for space to grow. Inside, you will find three versatile reception rooms, an expansive open-plan kitchen/dining/family area, and a series of practical facilities including a large utility room and convenient ground-floor shower room.
The upper level features four spacious double bedrooms, ensuring ample privacy and comfort, with a luxurious en-suite in the master suite. The sizeable gardens provide a tranquil retreat with plenty of room for outdoor activities and the potential for landscaping or gardening projects, complemented by a timber outbuilding for storage or hobby use.
Despite its idyllic location and spaciousness, the property may require some maintenance, specifically around the garden and outbuilding areas, but overall, it is well-presented and move-in ready. Melbourn is well-equipped with local amenities and has good transport links to Cambridge and London, making it ideal for those seeking a balanced lifestyle within the countryside. Don’t miss out on this unique opportunity to secure your family’s future in this peaceful yet vibrant community!
4 bedroom detached house for sale in Beechwood Avenue, Melbourn, SG8 — £450,000 • 4 bed • 1 bath • 1106 ft²
5 bedroom detached house for sale in Cedar Close, Melbourn, SG8 — £650,000 • 5 bed • 2 bath • 1605 ft²
4 bedroom semi-detached house for sale in New Road, Melbourn, SG8 — £475,000 • 4 bed • 2 bath • 1226 ft²
4 bedroom detached house for sale in Victoria Way, Melbourn, SG8 — £600,000 • 4 bed • 2 bath • 1552 ft²
3 bedroom detached house for sale in Trigg Way, Melbourn, SG8 — £415,000 • 3 bed • 1 bath • 1024 ft²
4 bedroom detached house for sale in Water Lane, Melbourn, SG8 — £575,000 • 4 bed • 2 bath • 1649 ft²










































































































