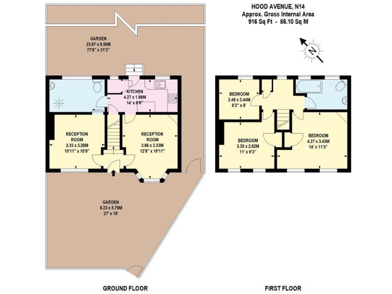
Long private garden with excellent schools and transport links close by.
- Chain free freehold three-bedroom end-terrace
- Two reception rooms and two bathrooms
- Large private rear garden approximately 77 feet
- Total internal area about 916 sq ft
- Close to Southgate Underground and local buses
- Near several well-regarded primary and secondary schools
- EPC D; likely scope for insulation and energy upgrades
- Requires cosmetic updating and some maintenance
A chain-free, freehold three-bedroom end-of-terrace on a quiet Southgate street, offering family-sized living over two floors. The house includes two reception rooms, a fitted kitchen, two bathrooms and a long, private rear garden of approximately 77 feet — rare for the area and ideal for children or entertaining.
Internals are of average overall footprint (about 916 sq ft) with neutral decoration and some original timber floors remaining. The property will suit buyers looking to move in and personalise; it also presents clear scope for uplift through sympathetic refurbishment, particularly to modernise the kitchen, bathrooms and heating controls.
Practical details: EPC D and Council Tax Band D; mains gas boiler with radiators and double glazing (install date unknown). The home sits near well-regarded schools (including Wolfson Hillel and Ashmole Academy) and parks, with Southgate Underground and local bus routes providing straightforward commuting into central London.
Buyers should note some cosmetic maintenance and improvement work is likely, and external walls are original solid brick (insulation may be required if upgrading energy efficiency). The property’s combination of garden, location and chain-free status makes it a sensible family purchase or a value-led refurbishment opportunity.
3 bedroom end of terrace house for sale in Addison Avenue, London, N14 — £650,000 • 3 bed • 2 bath • 1109 ft²
3 bedroom detached house for sale in Osidge Lane, London, N14 — £925,000 • 3 bed • 1 bath • 1562 ft²
4 bedroom semi-detached house for sale in The Woodlands, Southgate, Londono, N14 — £875,000 • 4 bed • 3 bath • 1777 ft²
5 bedroom house for sale in Nursery Road, London, N14 — £700,000 • 5 bed • 2 bath • 1830 ft²
3 bedroom terraced house for sale in Princes Avenue, Palmers Green, London, N13 — £575,000 • 3 bed • 1 bath • 1197 ft²
2 bedroom end of terrace house for sale in Chelmsford Road, London, N14 — £600,000 • 2 bed • 1 bath • 861 ft²






































































