**Standout Features:**
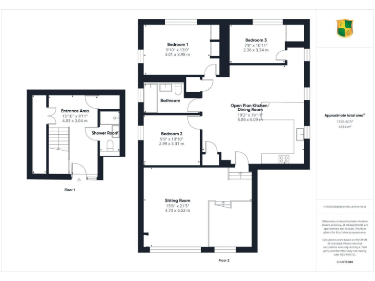
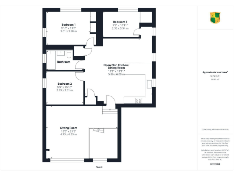
- Spacious duplex maisonette with three double bedrooms
- Two stylish bath/shower rooms
- Open-plan kitchen/dining room ideal for entertaining
- Beautifully presented throughout in a gated development
- Ample storage and secure parking
- Long lease of 243 years remaining with low ground rent
- Potential for a roof terrace (subject to planning permission)
- Excellent location near tranquil countryside and local amenities
**Summary Description:**
Discover a truly unique duplex maisonette, perfectly nestled within the picturesque Graylands Estate, just a short distance from Horsham town center. This spacious home boasts three generously sized double bedrooms and two contemporary bath/shower rooms, providing ample space for families or those looking to invest. The bright open-plan kitchen/dining area is designed for both functionality and socializing, seamlessly flowing into a cozy sitting room featuring a striking bioethanol fire.
With an extensive lease of 243 years and a modest service charge, this residence not only offers comfort but also room for potential renovations, like a roof terrace to relish in the stunning countryside views. Enjoy the security of a gated community and the convenience of off-street parking in this affluent area characterized by low crime rates. With the beautiful Sussex countryside on your doorstep and several local cafés nearby (including a discount for residents), this exceptional property is ideal for modern living.
Viewings are encouraged to truly appreciate the scope and elegance of this enviable maisonette. Don't miss the opportunity to make this your home; properties like this are in high demand!
2 bedroom mews property for sale in Graylands Estate, Horsham, West Sussex., RH12 — £365,000 • 2 bed • 2 bath • 1193 ft²
2 bedroom flat for sale in Graylands Manor, Langhurstwood Road, RH12 — £320,000 • 2 bed • 1 bath • 829 ft²
2 bedroom maisonette for sale in Graylands, Horsham, West Sussex., RH12 — £300,000 • 2 bed • 2 bath • 695 ft²
3 bedroom mews property for sale in Grayland Farm Barns, Langhurstwood Road, Horsham, West Sussex., RH12 — £450,000 • 3 bed • 2 bath • 911 ft²
1 bedroom ground floor flat for sale in Langhurst Wood Road, Horsham, West Sussex, RH12 — £210,000 • 1 bed • 1 bath • 464 ft²
2 bedroom apartment for sale in Warnham Court, Warnham, Horsham., RH12 — £380,000 • 2 bed • 2 bath • 890 ft²






































































































