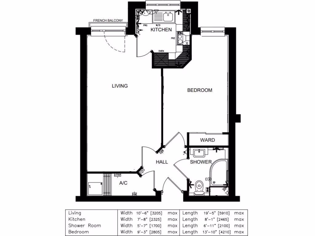
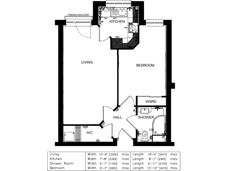
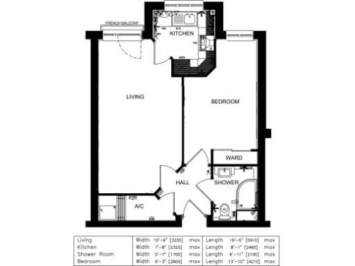
**Standout Features:**
- One-bedroom retirement apartment with Juliet balcony
- Located in modern Tregolls Lodge, built in 2016
- Good decorative order with integrated kitchen appliances
- Onsite Lodge Manager and 24-hour Careline system
- Private car park and access to a Guest Suite
- Close to Truro town center with excellent transport links
Located in the heart of Truro, this charming one-bedroom retirement apartment at Tregolls Lodge offers a perfect blend of comfort and community. Enjoy the bright living space accentuated by a lovely Juliet balcony that invites in natural light. The modern kitchen is equipped with high-quality integrated appliances, making meal preparation a delight.
Safety and security are prioritized with a 24-hour Careline system, ensuring peace of mind. The vibrant Owners’ Lounge is ideal for social events, fostering a sense of community among residents. With a Lodge Manager on-site, residents can count on regular maintenance and support.
This property boasts excellent transport links and proximity to local amenities, enhancing its appeal for an active retirement lifestyle. However, please note that the service charge and ground rent could be higher than average, impacting overall costs. Don’t miss your chance to experience peaceful retirement living in a modern, well-maintained environment – schedule your viewing today!
2 bedroom retirement property for sale in Tregolls Lodge, Truro, TR1 — £255,000 • 2 bed • 1 bath • 890 ft²
1 bedroom retirement property for sale in Tregolls Lodge, Truro, TR1 — £229,000 • 1 bed • 1 bath • 559 ft²
1 bedroom retirement property for sale in Tregolls Lodge, Truro, Cornwall, TR1 — £210,000 • 1 bed • 1 bath • 548 ft²
2 bedroom apartment for sale in St. Clements Hill, Truro, TR1 — £265,000 • 2 bed • 1 bath • 601 ft²
1 bedroom apartment for sale in Tregolls Lodge, St. Clements Hill, Truro, TR1 — £175,000 • 1 bed • 1 bath • 475 ft²
2 bedroom flat for sale in St. Clements Hill, Truro, Cornwall, TR1 — £265,000 • 2 bed • 1 bath • 660 ft²






























































